En vente Maison 4 pièces 137 m2

Ville Castres
Code postal 81100
Type de bien Maison
Surface 137 m2
Nombre de pièces 4 pièces
Prix 169 000,00 €
Informations sur l'annonceur
Annonce de professionnel
Nom
Adresse
81100
Portable 0624213338

Description

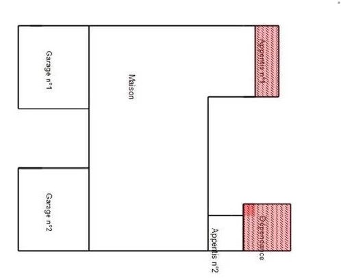
Située à Castres, cette maison de plain-pied développe une surface habitable d’environ 96 m², complétée par des annexes portant la surface totale à environ 136 m². Elle se compose d’une entrée, d’un séjour, de deux chambres, d’une cuisine indépendante, d’une salle d’eau et de toilettes séparées. Une véranda vient prolonger les espaces de vie et offre un potentiel intéressant selon les projets. Le bien dispose également de deux garages, d’une dépendance et d’un extérieur clos avec barbecue et éclairage extérieur. Chauffage au gaz par radiateurs, double vitrage et volets roulants. Maison nécessitant des travaux de rénovation et de remise au goût du jour, idéale pour un projet de résidence principale ou un investissement avec valorisation à moyen terme.

Les photos du bien

Les diagnostics