En vente Terrain
| Ville | Figari |
| Code postal | 20114 |
| Type de bien | Terrain |
| Surface | |
| Nombre de pièces | |
| Prix | 364 000,00 € |
| Informations sur l'annonceur | |
|---|---|
| Annonce de professionnel |
|
| Agence | La Maison de l'Immobilier Voir toutes les annonces |
| Adresse | IMMEUBLE BIANCARELLI |
| 20137 Porto-Vecchio | |
| Téléphone Fixe | 0618783690 |
Description
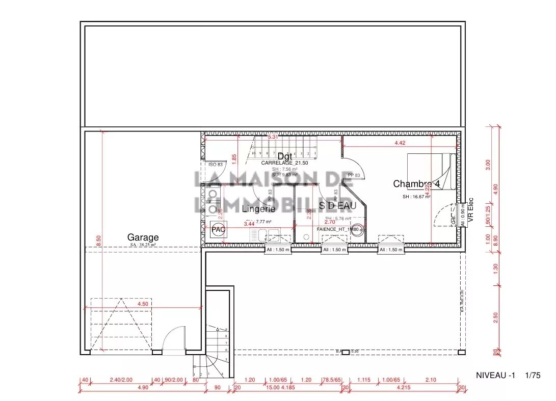
Sur la commune de Figari, au lieu-dit Piscia dans le hameau de Montilati, venez découvrir ce vaste terrain de 8 400 m² dont une grande partie constructible, offrant une vue panoramique sur la plaine et les montagnes. Un permis de construire purgé de tout recours, permet la réalisation d'une maison de 131 m² de surface de plancher avec un garage de 38 m². La parcelle, orientée au sud, présente une bonne déclivité avec une végétation naturelle qui est dominée par un majestueux enrochement. La maison projetée comprend : Au premier niveau, un garage, une buanderie, une chambre et une salle d'eau. À l'étage, une suite parentale, deux chambres avec une salle d'eau commune, un cellier, un grand espace séjour/salon/cuisine ouvert sur une terrasse de 55 m².