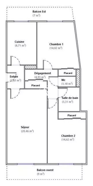
En vente Appartement 3 pièces 86 m2
| Ville | Nice |
| Code postal | 06000 |
| Type de bien | Appartement |
| Surface | 86 m2 |
| Nombre de pièces | 3 pièces |
| Prix | 223 000,00 € |
| Informations sur l'annonceur | |
|---|---|
| Annonce de professionnel |
|
| Agence | Agence Rivoli Voir toutes les annonces |
| Adresse | 75, Rue de France |
| 06000 Nice | |
| Téléphone Fixe | 0493629492 |
Description
Dans le quartier de Saint Roch, à proximité immédiate du tramway, des écoles, supermarchés et tous commerces à pied. Appartement 3 pièces traversant, avec 2 terrasses – Lumineux & au calme. Configuration très fonctionnelle et facilement transformable en 4 pièces. Résidence avec ascenseur. Il se compose d’un séjour lumineux ouvrant sur une agréable terrasse, d’une cuisine indépendante donnant accès à une seconde terrasse, de deux chambres, d’une salle de bains, d'un toilette séparé et de nombreux rangements. Une cave complète ce bien. Possibilité d'achat d'un garage en sous-sol en option. Fort potentiel et des atouts rares dans le secteur à ce prix. Emplacement recherché – calme – traversant – terrasses Une opportunité à saisir rapidement. Honoraires charge vendeurs. Le rapport ERRIAL sur les risques auxquels ce bien est exposé est disponible en cliquant sur le lien : https://errial.georisques.gouv.fr