En vente Maison 128 m2

Ville MOLLANS SUR OUVEZE
Code postal 26170
Type de bien Maison
Surface 128 m2
Nombre de pièces
Prix 285 000,00 €
Informations sur l'annonceur
Annonce de professionnel
Agence VENTOUX IMMOBILIER Malaucene - VENTOUX IMMOBILIER
Voir toutes les annonces
Adresse 18 AVENUE DE VERDUN
84340 MALAUCENE
Téléphone Fixe 0490650500
Portable

Description

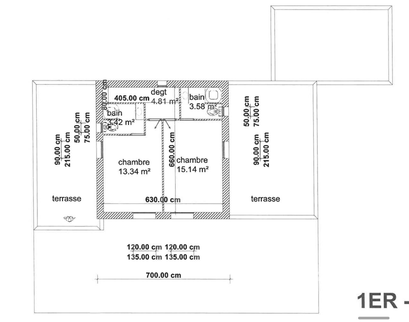
Entre Mollans sur Ouveze et Buis les Barronies, maison hors d'eau / hors d'air à terminer sur terrain de 840m2 environ. La maison en R+1 totalisera une surface habitable de 128m2 environ avec piscine et garage. Superbe vue dégagée. Garantie décenale. Les informations sur les risques auxquels ce bien est exposé sont disponibles sur le site Géorisques : www.georisques.gouv.fr

Les photos du bien

Les diagnostics