En vente Appartement 3 pièces 61 m2

Ville Genova
Pays Italie
Type de bien Appartement
Surface 61 m2
Nombre de pièces 3 pièces
Prix 109 000,00 €
Informations sur l'annonceur
Annonce de professionnel
Agence Royal House
Voir toutes les annonces
Adresse Via Tullio Molteni, 2
16151 Genova

Description

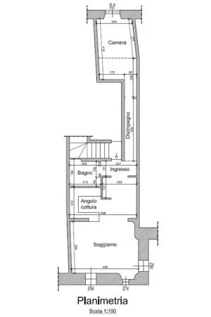
GE-PRA PIAZZA AMATORE SCIESA Appartamento completamente ristrutturato, in oerfette condizioni. In zona centrale, esposto a sud, con la stupenda piazza Sciesa a far da cornice a questo caratteristico borgo, composto da piccole palazzine in stile, tipico ligure. L'alloggio è posto al terzo piano, senza ascensore, con una bellissima scala in ardesia che sale ai piani. La composizione è la seguente: porta blindata all'ingresso dove si accede in un locale composto da cucina appartata ed un bel salone aperto. La cucina è completamente arredata di tutti gli elettrodomestici, in pietra la struttura. A fare compagnia a questi due ambienti in open space abbiamo tre armadi a muro ben capienti sia per larghezza che altezza. Il soffitto è corredato da travi in legno a vista. Il bagno con doccia e scalda salviette, un corridoio che ci porta alla camera da letto matrimoniale esposta su pz. Sciesa. Tutto l'alloggio è arredato in stile Vecchia Marina. Le spese di gestione ordinaria sono irrisorie € 200,00 l'anno circa. L'immobile qui proposto è veramente una perlina, ristrutturato finemente e con gusto. Una Occasione unica

Les photos du bien

Les diagnostics


DPE
Bâtiment économe
175
Bâtiment énergivore
en kWh.an/m².an
GES
GES non communiqué

Contacter