En vente Appartement 2 pièces
| Ville | Tassin-la-Demi-Lune |
| Code postal | 69160 |
| Type de bien | Appartement |
| Surface | |
| Nombre de pièces | 2 pièces |
| Prix | 245 000,00 € |
| Informations sur l'annonceur | |
|---|---|
| Annonce de professionnel |
|
| Agence | Centralym Voir toutes les annonces |
| Adresse | 36 rue des Aqueducs |
| 69005 Lyon 5ème | |
| Téléphone Fixe | 0437411020 |
Description
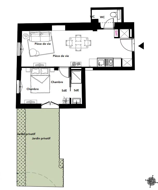
Découvrez cet appartement T2 de 36,94 m², situé au cœur d’une résidence de charme réhabilitée à Tassin-la-Demi-Lune. La pièce de vie de 22,53 m², équipée d’un espace cuisine, s’ouvre sur un jardin privatif de 27,53 m². L’espace nuit comprend une chambre de 9,91 m² ainsi qu’une salle d’eau de 2,08 m² et un WC indépendant de 2,42 m². Les prestations incluent un parquet en chêne dans les pièces principales, des menuiseries en bois assurant une bonne isolation thermique et phonique, ainsi qu’un carrelage dans la salle d’eau et un chauffage individuel performant. Place de parking en sus à 12 000€. La résidence bénéficie d’un emplacement permettant un accès rapide aux commerces, aux transports en commun et aux services de proximité. Les arrêts de bus à quelques minutes facilitent les déplacements vers Lyon et ses environs. Pour toute information ou pour organiser une visite, contactez Jean de Jouffrey au 07 88 76 30 78.