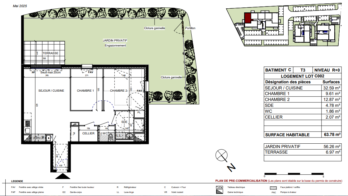
En vente Appartement 3 pièces 63 m2
| Ville | SAINT PERE EN RETZ |
| Code postal | 44320 |
| Type de bien | Appartement |
| Surface | 63 m2 |
| Nombre de pièces | 3 pièces |
| Prix | 225 900,00 € |
| Informations sur l'annonceur | |
|---|---|
| Annonce de professionnel |
|
| Agence | UN NOUVEAU CHEZ VOUS Pornic Voir toutes les annonces |
| Adresse | 23A Rue de Nantes |
| 44210 PORNIC | |
| Téléphone Fixe | 0240214609 |
Description
Un Nouveau Chez Vous propose, à 5 min à pieds du centre, appartement neuf en vente sur plan (livraison fin 2027) rez-de-jardin, offrant pièce de vie avec espace cuisine, 2 chambres, une salle d'eau, un WC et un cellier. Jardin privatif et terrasse. Une place de parking privée. Local vélos. Contacter Gaëlle au 06.70.17.65.97 Gaëlle THEBAUD (EI) Agent Commercial - Numéro RSAC : - St Nazaire.
Les photos du bien
Les diagnostics
DPE
| Energie non communiquée |
|---|
GES
| GES non communiqué |
|---|