En vente Maison 7 pièces 452 m2

Ville Castres
Code postal 81100
Type de bien Maison
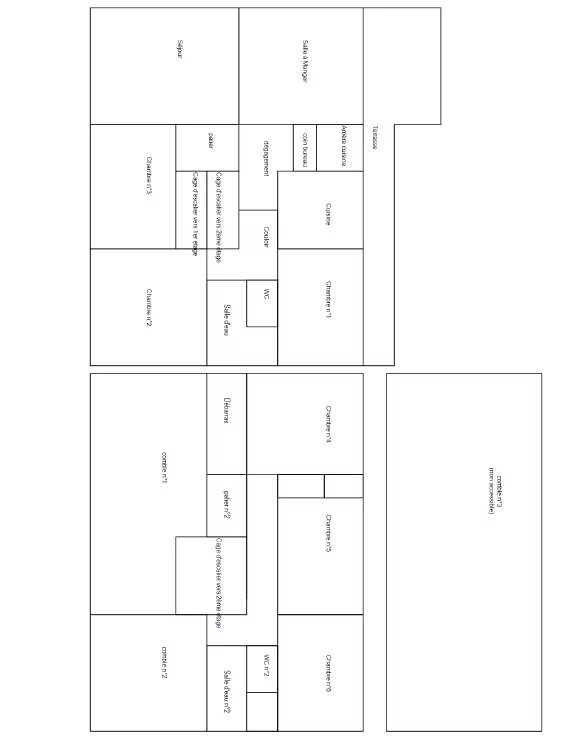
Surface 452 m2
Nombre de pièces 7 pièces
Prix 295 000,00 €
Informations sur l'annonceur
Annonce de professionnel
Nom
Adresse
81100
Portable 0624213338

Description

Située en centre-ville, cette maison de caractère développe de très beaux volumes et offre une configuration rare, idéale pour un projet mixte résidentiel et professionnel/locatif. La partie habitation propose environ 232 m² habitables, avec de vastes pièces de vie lumineuses, plusieurs chambres et un potentiel d’aménagement intéressant pour une grande famille ou un projet patrimonial. L'atout majeur du bien est un local professionnel indépendant d’environ 84 m² (possibilité de découper et de revendre le local), actuellement loué 656 € par mois, permettant de bénéficier immédiatement d’un revenu locatif sécurisé tout en conservant l’usage privatif de la maison. Une configuration idéale pour un investisseur, une profession libérale ou toute personne souhaitant concilier lieu de vie et rendement. L’ensemble est complété par un garage de 47 m², un atelier, une dépendance en pierre d’environ 48 m² et un agréable jardin clos et arboré de 543 m², à l’abri des regards, avec une vue dégagée sur les toits de la ville. Le bien bénéficie d’un environnement urbain tout en conservant une vraie sensation d’espace et de calme. Une propriété à fort potentiel qui séduira aussi bien les amateurs de belles bâtisses que les profils en recherche d’un placement immobilier.

Les photos du bien

Les diagnostics