En location Appartement 3 pièces

Ville Rillieux-la-Pape
Code postal 69140
Type de bien Appartement
Surface
Nombre de pièces 3 pièces
Prix 900,00 €
Informations sur l'annonceur
Annonce de professionnel
Agence NOUVEL ESPRIT GESTION
Voir toutes les annonces
Adresse 118 AVENUE JEAN MOULIN
69720 Saint-Laurent-de-Mure

Description

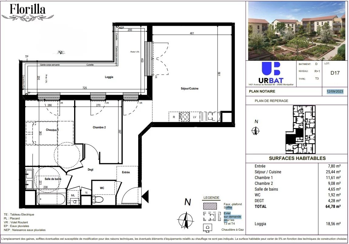
Rillieux village : Dans une résidence neuve, calme et sécurisée, venez découvrir ce superbe T3, au 1er étage avec ascenseur. Cet appartement de 64.78m² vous séduira par son agencement fonctionnel. Vous disposerez tout d'abord d'une entrée avec placard, desservant toutes les pièces. Vous retrouverez ensuite une pièce de vie lumineuse de 25.44 m² avec cuisine aménagée et équipée, le tout ouvrant sur une grande terrasse de près de 19m². La cuisine sera équipée d'une plaque de cuisson, d'une hotte, d'un four ainsi que des éléments de rangement hauts et bas (voir visuel 3D, en cours de pose). Vous retrouverez ensuite un coin nuit doté de 2 chambres : l'une de 11.61 m² , et la seconde de 9.08 m² avec placard , ainsi qu'une salle de bains et un WC indépendant. 2 stationnements complètent cette location (inclus dans le loyer) : un box fermé ainsi qu'une place privative en sous-sol. Chauffage individuel gaz. Vous profiterez d'un emplacement idéal, proche de toutes les commodités. On trouve à quelques minutes les zones d'activités PERICA / CHAMP DU ROY offrant un large choix d'enseignes tel que : Castorama, Carrefour Market, Boucherie André, Action, (etc) plusieurs boulangeries, pharmacies et restaurants. Vous retrouverez également à proximité immédiate l'arrêt de bus "Paul Chevalier" de la ligne C33, desservant la Croix Rousse et les communes voisines. Disponible début Février, contactez nous sans attendre pour déposer votre candidature ! Loyer hors charges : 900€ Provisions pour charges : 50€, incluant l'entretien des parties communes et de la chaudière individuelle Dépôt de garantie : 900€ Honoraires : 841€ (647€ pour les visites, la constitution du dossier, et la rédaction du bail, et 194€ pour la réalisation de l'état des lieux) Les informations sur les risques auxquels ce bien est exposé sont disponibles sur le site Géorisques : georisques.gouv.fr

Les photos du bien

Les diagnostics


DPE
Bâtiment économe
49
Bâtiment énergivore
en kWh.an/m².an
GES
Faible émission de GES*
44
Forte émission de GES*
* Gaz à effet de serre en KgeqCO2/m².an

Contacter