En location Appartement 1 pièce 22 m2

Ville VILLEURBANNE
Code postal 69100
Type de bien Appartement
Surface 22 m2
Nombre de pièces 1 pièce
Prix 618,00 €
Informations sur l'annonceur
Annonce de professionnel
Agence HABITAT DE CARACTERE - LYON
Voir toutes les annonces
Adresse 6 Place de Sathonay
69001 LYON
Téléphone Fixe 0472800572
Portable

Description

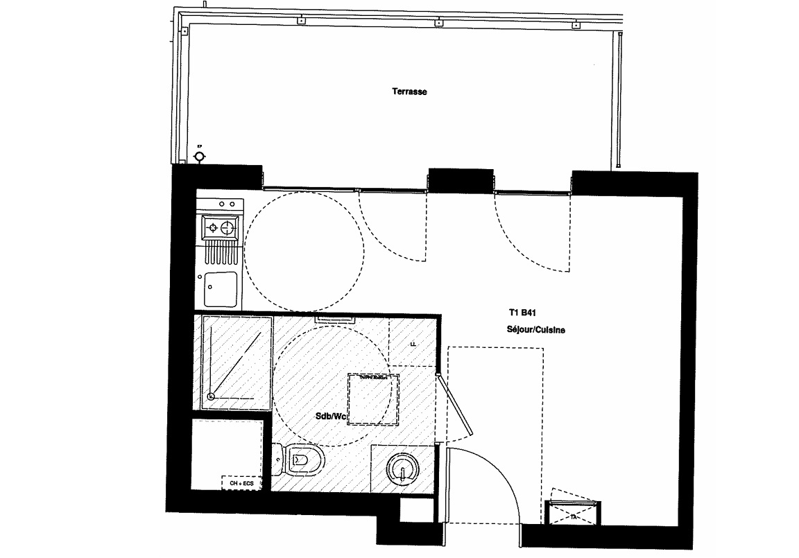
32 Rue des Alliés 69100 Villeurbanne Dans un immeuble neuf, au 4? étage, charmant T1 de 22,64 m² entièrement meublé. Il se compose d'une pièce de vie lumineuse avec cuisine équipée, ouvrant directement sur une agréable terrasse de 10 m², ainsi que d'une salle d'eau avec WC. Une place de parking vient compléter l'ensemble de ses prestations.

Les photos du bien

Les diagnostics


DPE
Bâtiment économe
114
Bâtiment énergivore
en kWh.an/m².an
GES
Faible émission de GES*
24
Forte émission de GES*
* Gaz à effet de serre en KgeqCO2/m².an