En vente Boutique 85 m2
| Ville | AIX EN PROVENCE |
| Code postal | 13100 |
| Type de bien | Boutique |
| Surface | 85 m2 |
| Nombre de pièces | |
| Prix | 110 000,00 € |
| Informations sur l'annonceur | |
|---|---|
| Annonce de professionnel |
|
| Agence | Klub Immo Sainte Victoire Voir toutes les annonces |
| Adresse | |
| 13290 Aix-en-Provence | |
| Téléphone Fixe | 0442171388 |
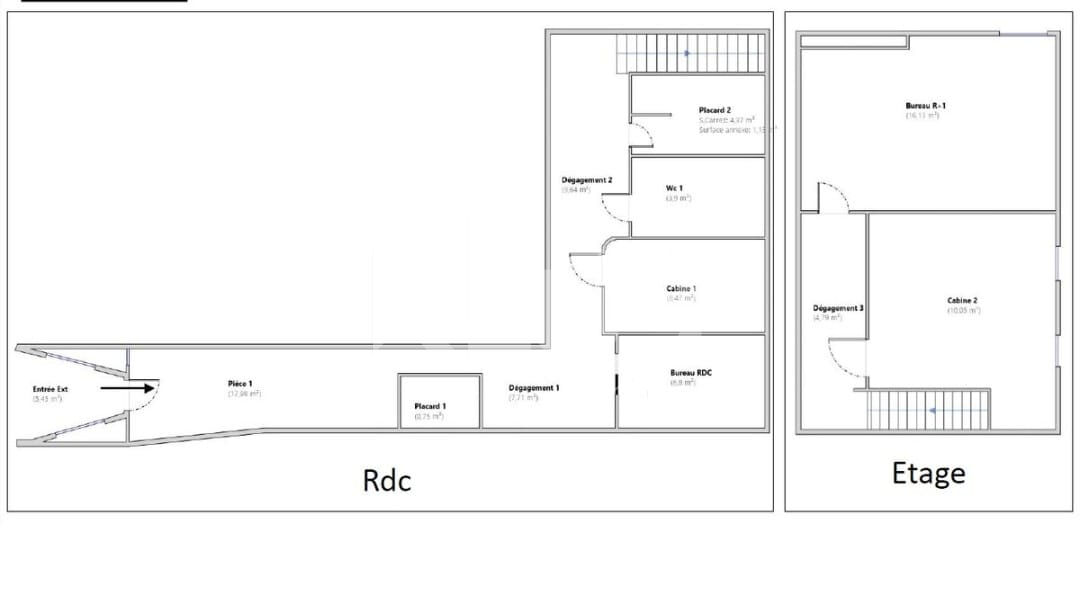
Description
Cession de droit au bail. Emplacement au sein d'une rue commerçante de l'hypercentre d'Aix-en-Provence, local d'environ 90 m2 avec vitrine. Composé actuellement de deux salles de soins, d'un bureau, d'une grande réserve ainsi que de toilettes PMR, ce local est idéal pour une profession médicale ou paramédicale, pour des indépendants ainsi que pour une boutique. Loyer mensuel TTC: 3166,99 euros Alexandre FLANQUART (EI) Agent Commercial - Numéro RSAC : 904786753 - Marseille.