En vente Appartement 2 pièces 53 m2

Ville Paris
Code postal 75003
Type de bien Appartement
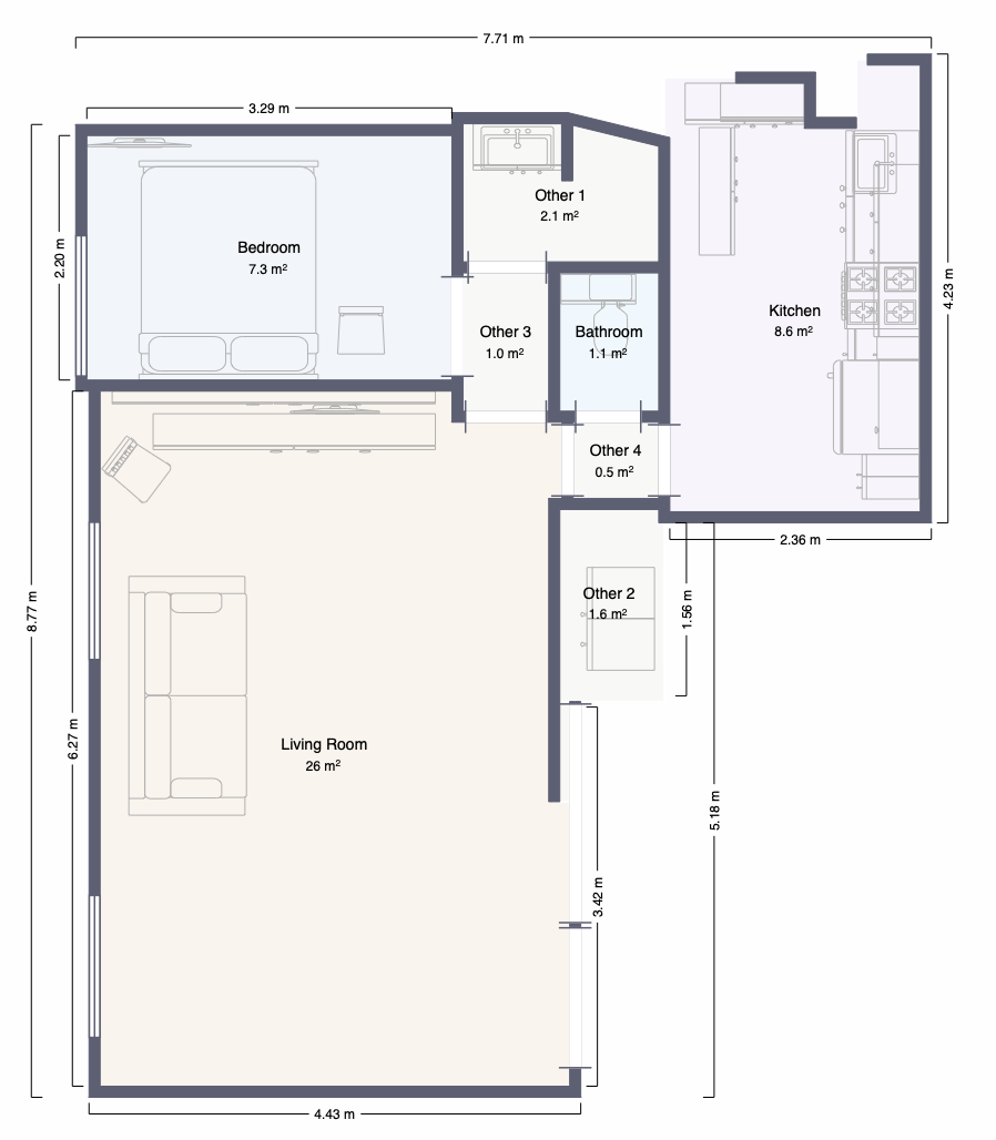
Surface 53 m2
Nombre de pièces 2 pièces
Prix 585 000,00 €
Informations sur l'annonceur
Annonce de professionnel
Agence Cabinet BR Immobilier
Voir toutes les annonces
Adresse 14 Rue Thérèse
75001 Paris
Téléphone Fixe 0140159225

Description

Idéalement situé au pied de la Place de la République et des transports (lignes 3? 5 8 9 & 11), sur le boulevard du Temple.
 
Dans un petit immeuble datant d'avant 1800.
 
Le cabinet BR immobilier a le plaisir de vous présenter ce charmant appatement 2 pièces de 53m2.
 
Celui-ci se compose d'un grand séjour avec placard de grande profondeur, deux grandes fenêtres donnant sur rue, une chambre, une cuisine séparée et une salle d'eau et un WC séparé.
 
Photos et vidéo sur demande par SMS au 07 66 19 25 21

Les photos du bien

Les diagnostics


DPE
Bâtiment économe
250
Bâtiment énergivore
en kWh.an/m².an
GES
Faible émission de GES*
54
Forte émission de GES*
* Gaz à effet de serre en KgeqCO2/m².an

Les informations complémentaires

PROCHE RÉPUBLIQUE / CHARME DE L'ANCIEN / PHOTOS À VENIR
Prix de vente honoraires TTC inclus : 585 000 €