En vente Appartement 6 pièces 270 m2
| Ville | Roubaix |
| Code postal | 59100 |
| Type de bien | Appartement |
| Surface | 270 m2 |
| Nombre de pièces | 6 pièces |
| Prix | 336 000,00 € |
| Informations sur l'annonceur | |
|---|---|
| Annonce de professionnel |
|
| Agence | Napoleon Habitat Voir toutes les annonces |
| Adresse | |
| 59000 Lille | |
| Négociateur | Napoléon Habitat |
| Téléphone | 07-57-85-85-85 |
Description
« On n'habite pas un lieu, on habite une lumière. »
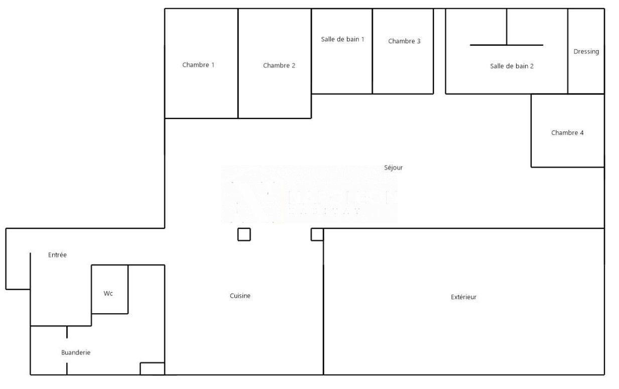
Je ne vais pas vous parler du fait que Napoléon Habitat vous fait découvrir un loft d'exception de plus de 260 m², entièrement rénové, où volumes et lumière réinventent l'art de vivre.
Je ne vais pas vous parler d'une pièce de vie pensée comme un plateau de réception : séjour traversant, salle à manger conviviale et cuisine haut de gamme avec îlot central, véritable coeur battant de la maison.
Je ne vais pas vous parler de la terrasse plein sud, sans vis-à-vis, idéale pour les repas, la détente ou le jardinage urbain ; ni des prestations soignées, des rangements intégrés et de la buanderie/local technique qui en font un bien clé en main, sans oublier le stationnement intérieur privatif et sécurisé, précieux en coeur de ville.
Je ne vais pas vous parler d'un emplacement à deux pas des commerces, écoles, transports et axes ; ni d'un coup de coeur évident que vous constaterez en visite. je ne vais pas vous parler d'autre chose que d'un rendez-vous à fixer pour une présentation personnalisée.
Honoraires à la charge du vendeur.
Dans une copropriété de 6 lots. Quote-part moyenne du budget prévisionnel 1 510 €/an. Aucune procédure n'est en cours. Classe énergie D, Classe climat D Montant moyen estimé des dépenses annuelles d'énergie pour un usage standard, établi à partir des prix de l'énergie de l'année 2021 : entre 3461.00 et 4682.00 €. Les informations sur les risques auxquels ce bien est exposé sont disponibles sur le site Géorisques : georisques.gouv.fr.
Votre conseiller Napoléon Habitat : Moustafa BOUGDI
Agent commercial (Entreprise individuelle)
RSAC 881374201
RCP 62709207.
Les informations sur les risques auxquels ce bien est exposé sont disponibles sur le site Géorisques : http://www.georisques.gouv.fr . L'agence ne peux détenir ni percevoir des fonds autres que sa rémunération et ses honoraires. Vous souhaitez plus de renseignement sur ce bien, nous vous invitons à nous contacter directement au 07.57.85.85.85, ou à consulter directement notre site internet www.napoleon-habitat.fr