En location Appartement 2 pièces 61 m2
| Ville | ARLES |
| Code postal | 13200 |
| Type de bien | Appartement |
| Surface | 61 m2 |
| Nombre de pièces | 2 pièces |
| Prix | 699,00 € |
| Informations sur l'annonceur | |
|---|---|
| Annonce de professionnel |
|
| Agence | GNIMMO - Manaranche Immobilier-Arles - GNIMMO - Manaranche Immobilier-RDO HEKTOR Voir toutes les annonces |
| Adresse | 9, Avenue Victor Hugo |
| 13200 Arles | |
| Téléphone Fixe | 0490960236 |
| Portable |
Description
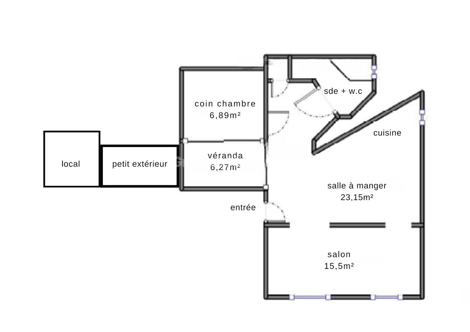
Rue Truchet en plein centre-ville d'Arles, un grand T2 meublé plein de charme de 61m² en rez-de-chaussée surélevé comprenant : Une salle à manger avec coin cuisine meublé et équipé (23,15m²), un salon avec une cheminée strictement décorative (15,5m²), un coin chambre/bureau (6,83m²), une salle d'eau avec w.c, une véranda fermée, un petit extérieur donnant sur un petit local. LOYER C.C (charges comprises : EAU, communs + T.O.M) : 699 euros Honoraires charge locataire : 631 euros Dépôt de garantie encaissé (deux mois de loyers hors charge) : 1262 euros