Description
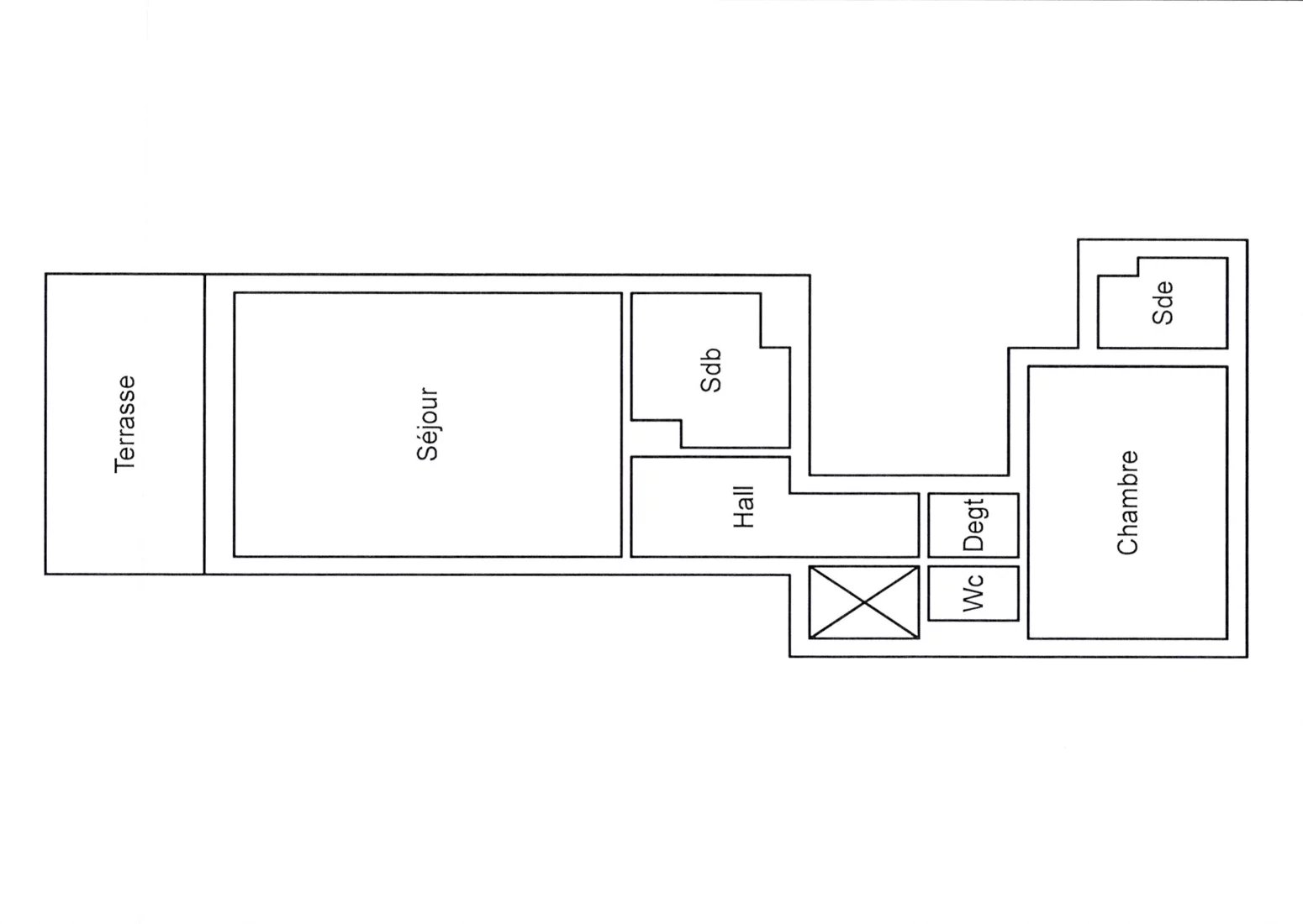
Situato sulla prestigiosa Croisette, questo appartamento di 50,11 m² si trova in un condominio esclusivo, intimo ed elegante che offre un ambiente di vita eccezionale. Situato a un piano alto, gode di una vista sul mare e sul verde circostante da una spaziosa terrazza esposta a sud.
L'appartamento si apre su un ingresso con armadietti, che conduce a un luminoso soggiorno con una cucina a pianta aperta completamente attrezzata, ideale per intrattenersi. La camera da letto dispone di un proprio bagno con doccia e di una toilette separata per un maggiore comfort e comodità. Un ulteriore bagno con servizi igienici, oltre a corridoi e ripostigli, completano l'elegante disposizione interna di questa proprietà.