Description
PEILLON – À 30 minutes de Nice
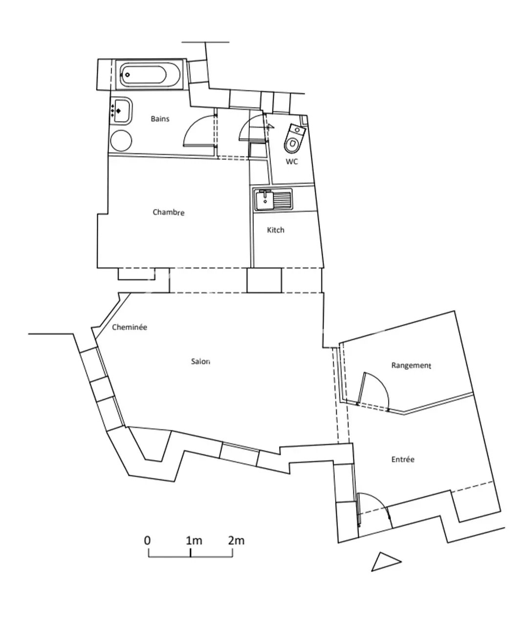
Au cœur du village médiéval de Peillon, maison de village individuelle de 2/3 pièces d’environ 50M², pleine de charme et de caractère.
Accessible par un escalier, cette maison se compose d’une entrée, d’un double séjour lumineux d’environ 19 m², d’une cuisine indépendante, d’une chambre, d’un bureau pouvant faire office de petite chambre ou espace nuit, ainsi que d’une salle de bains et de WC indépendants.
Le bien a conservé toute l’authenticité des maisons de l’arrière-pays niçois : murs en pierre, poutres apparentes, portes en bois et volumes typiques. L’ensemble nécessite des travaux de rénovation, offrant un beau potentiel pour réaliser un projet sur-mesure, que ce soit pour une résidence principale, secondaire ou un investissement locatif.
Nichée dans un environnement calme et préservé, cette maison allie le charme de l’ancien à un cadre de vie paisible.
Perché sur un éperon rocheux dominant la vallée du Paillon, le village de Peillon séduit par son authenticité : ruelles pavées, maisons en pierre et passages voûtés composent une atmosphère hors du temps, au cœur d’un écrin de verdure.
À seulement quelques minutes de Nice et du littoral, Peillon bénéficie d’un cadre naturel privilégié tout en restant proche des commodités et des axes principaux.
Classe énergie : F.