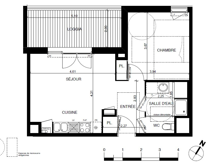
En vente Appartement 2 pièces 41 m2
| Ville | CASTANET TOLOSAN |
| Code postal | 31320 |
| Type de bien | Appartement |
| Surface | 41 m2 |
| Nombre de pièces | 2 pièces |
| Prix | 182 000,00 € |
| Informations sur l'annonceur | |
|---|---|
| Annonce de professionnel |
|
| Agence | IMMO de France - Toulouse - Balma Voir toutes les annonces |
| Adresse | |
| 31130 Balma | |
| Téléphone Fixe | 0561730364 |
Description
Immo de France a le plaisir de vous présenter ce très bel appartement 2 pièces, au 1er étage d'une copropriété très récente et sécurisée. Il se compose d'une entrée avec placard, un séjour avec cuisine ouverte, une très grande chambre de plus de 13m2 avec placard, une salle d'eau ainsi qu'un WC séparé. Cet appartement est lumineux et bénéficie d'une très belle de terrasse de 9m2, sans vis à vis ! Il bénéficie d'une place de parking en sous sol. Les charges indiquées comprennent la consommation d'eau. Situé à proximité des commerces et des transports en commun, du CNRS, INRAE, du lycée Agricole de Toulouse, ENSFEA, INP. Le lineo 6, au pied de la résidence, permet de relier le métro de Ramonville en 10min. Les plus de cet appartement : - résidence récente - absence de vis à vis - au pied du bus - faibles charges (7.00 % honoraires TTC à la charge de l'acquéreur.) Copropriété de 11 lots - dont 11 lots habitation. Charges annuelles : 1270 euros.