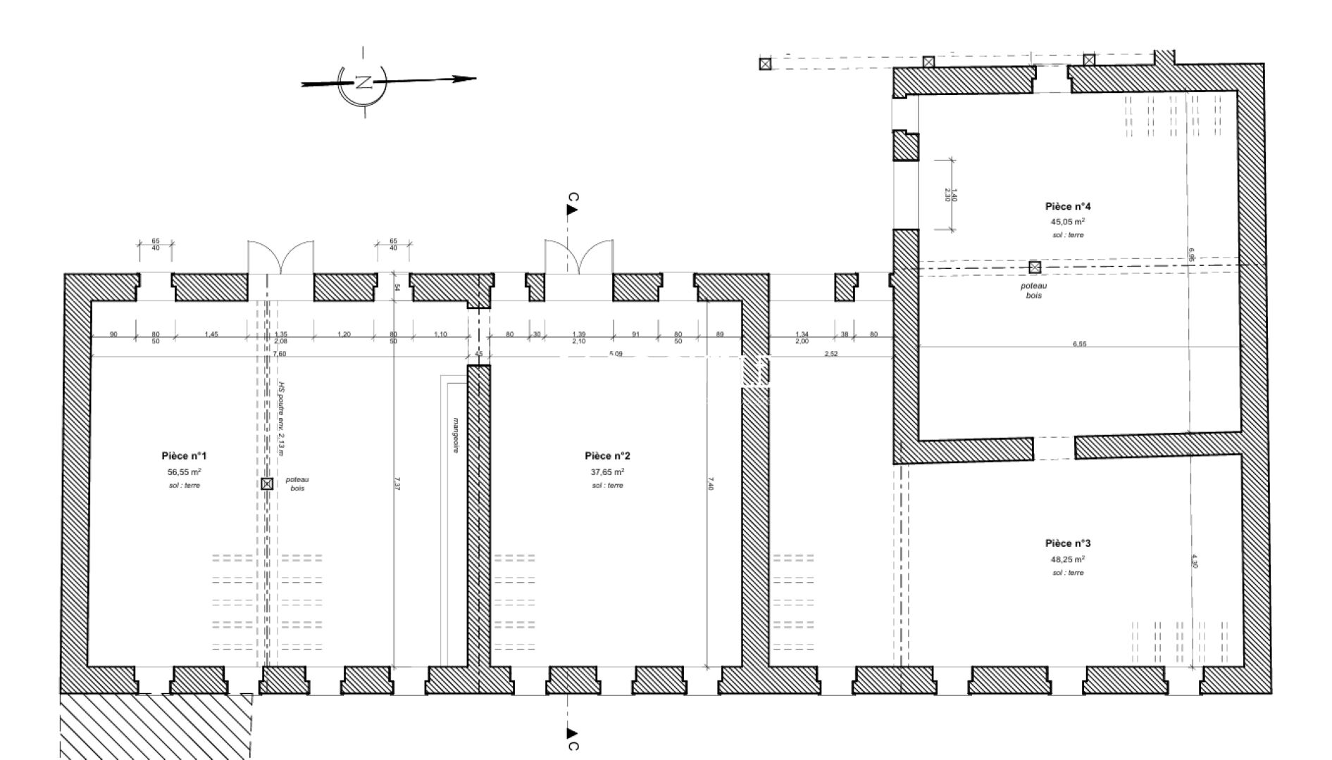
En vente Bien 1 pièce 187 m2
| Ville | SORIGNY |
| Code postal | 37250 |
| Type de bien | Bien |
| Surface | 187 m2 |
| Nombre de pièces | 1 pièce |
| Prix | 99 900,00 € |
| Informations sur l'annonceur | |
|---|---|
| Annonce de professionnel |
|
| Agence | LA ROQUILLE Voir toutes les annonces |
| Adresse | 47 avenue de Bordeaux |
| 37300 Joué-lès-Tours | |
| Téléphone Fixe | 0987518594 |
| Portable |
Description
EXCLUSIVITE!!! A découvrir proche du centre de Sorigny. A RENOVER EN HABITATION!!! Belle grange de 187m² au sol sur une parcelle de 1635m² non viabilisée. Les informations sur les risques auxquels ce bien est exposé sont disponibles sur le site Géorisques : www.georisques.gouv.fr (5.27 % honoraires TTC à la charge de l'acquéreur.) CYRIL ABRIOUX (EI) Agent Commercial - Numéro RSAC : 813250081 - TOURS.