Description
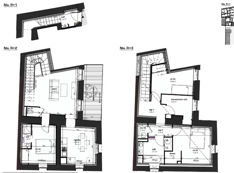
Au sein de Le Saint-Just, réhabilitation d’un ancien couvent, ce T4 offre une distribution optimisée : séjour de plus de 17 m², d'une cuisine séparée, de 3 chambres dont une avec un dressing, de deux salles de douche, d'un coin bureau, 2 toilettes séparées, et d'un balcon de 9 m²
La résidence propose un cadre agréable en cœur de ville, proche des commodités et lieux culturels.
Investissement : Eligible déficit foncier Malraux de Normandie Bailleur privé
Simulation fiscale certifiés sur chaque bien
Pour plus d'information, merci de nous contacter directement.