En vente Appartement 1 pièce

Ville Nice
Code postal 06000
Type de bien Appartement
Surface
Nombre de pièces 1 pièce
Prix 199 000,00 €
Informations sur l'annonceur
Annonce de professionnel
Nom
Adresse
06100
Portable 0627961805

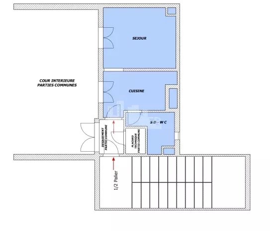
Description

Situé au 68 avenue Jean Médecin à Nice, dans la partie haute de l’avenue, ce studio de 23 m² se trouve au 1er étage d’une copropriété soignée et bien entretenue avec ascenseur, la façade et les parties communes ont été récemment rénovées. L’appartement donne exclusivement sur cour intérieure, offrant un calme absolu, sans aucun voisin direct. Il se vit comme une petite maison indépendante, un bien rare en plein cœur du centre-ville. Description du bien: • Cuisine aménagée • Séjour agréable et fonctionnel • Salle d’eau avec WC • Appartement entièrement rénové • Aucun travaux à prévoir – prêt à exploiter immédiatement Copropriété: • Airbnb autorisé • Appartement exploité en location saisonnière à l’année • Reprise possible des réservations déjà confirmées • Charges : 255 € / trimestre, chauffage collectif inclus • Taxe foncière : 658 € / an Investissement locatif clé en main Exploitation actuelle en Airbnb : • 80 € / nuit en basse saison • 120 à 140 € / nuit en haute saison Chiffre d’affaires annuel estimé : ~22 000 € Rentabilité brute : environ 11 % Un emplacement stratégique en pleine transformation Le bien se situe dans un secteur en total réaménagement, au cœur de l’un des projets urbains les plus ambitieux de Nice. À proximité immédiate, le complexe ICONIC — véritable pôle nouvelle génération — accueille désormais : Grandes enseignes nationales et internationales Espaces commerciaux et de services Un hôtel 4★ (DoubleTree by Hilton) Des flux piétons renforcés entre la gare et Jean Médecin L’avenue Jean Médecin bénéficie d’un important programme de modernisation : amélioration des espaces piétons, végétalisation, attractivité commerciale renforcée et valorisation durable du quartier. Un environnement idéal pour la location saisonnière, avec une forte demande touristique et professionnelle, et un potentiel de valorisation à long terme. Prix : 199 000 € FAI (honoraires inclus – 6 %) Bien rare sur le secteur, idéal pour un investisseur recherchant un produit déjà rentable, sans travaux, dans un quartier central en pleine montée en gamme.

Les photos du bien

Les diagnostics