En vente Appartement 3 pièces

Ville Toulouse
Code postal 31000
Type de bien Appartement
Surface
Nombre de pièces 3 pièces
Prix 299 145,00 €
Informations sur l'annonceur
Annonce de professionnel
Nom
Adresse
31860
Portable 0689761508

Description

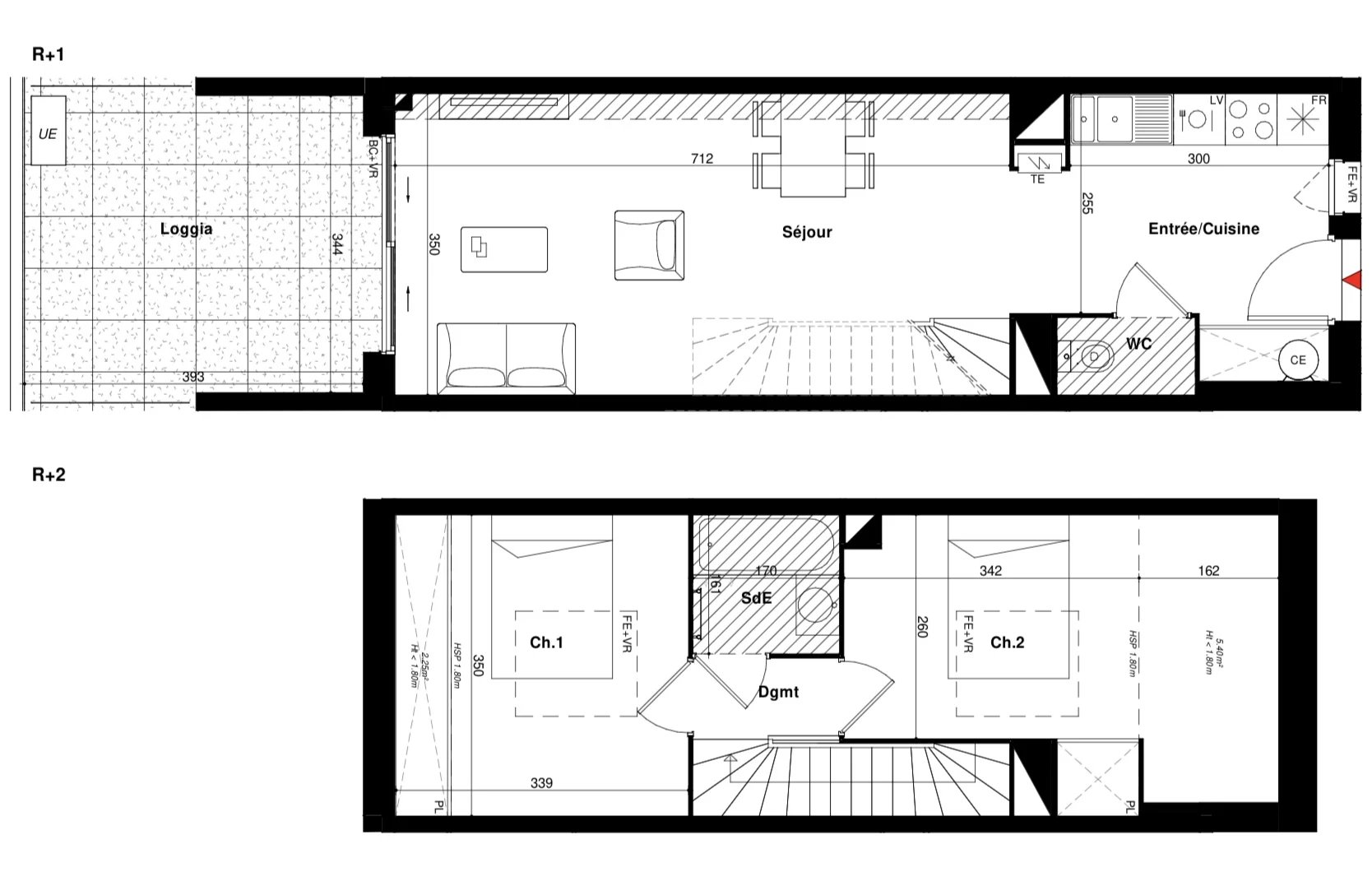
À vendre, superbe appartement en duplex de type T3, situé au sein de la nouvelle résidence de standing "Arcadie". Proposé au prix de 284 900 euros FAI. Ce bien rare, aux prestations modernes, offre une surface habitable de 57,40 m² idéalement répartie sur deux niveaux, complétée par un bel espace extérieur. Espace de vie lumineux : Une entrée avec cuisine ouverte donnant sur un vaste séjour de plus de 22 m². Extérieur privatif : Profitez d'une grande loggia de 14 m², véritable pièce de vie supplémentaire en extérieur. Espace nuit indépendant : À l'étage, vous trouverez deux chambres confortables et une salle d'eau moderne. Prestations neuves : Volets roulants électriques, placard intégré, et ballon thermodynamique. Non soumis au DPE Pas de procédure en cours N’hésitez pas à nous contacter pour plus de renseignements. MENIS Clara 06 95 26 62 44 284,900 € Honoraires d'agence non inclus - Honoraires agence: 5%TTC Honoraires à la charge de l'acquéreur - Les informations sur les risques auxquels ce bien est exposé sont disponibles sur le site Géorisques : www.georisques.gouv.fr - RCS 81931340400017

Les photos du bien

Les diagnostics