En vente Immeuble 20 pièces 369 m2
| Ville | BLAINVILLE SUR L EAU |
| Code postal | 54360 |
| Type de bien | Immeuble |
| Surface | 369 m2 |
| Nombre de pièces | 20 pièces |
| Prix | 259 500,00 € |
| Informations sur l'annonceur | |
|---|---|
| Annonce de professionnel |
|
| Agence | MENTOR - SIÈGE - LOR'N HABITAT Voir toutes les annonces |
| Adresse | |
| 54670 CUSTINES | |
| Téléphone Fixe | 0383496840 |
Description
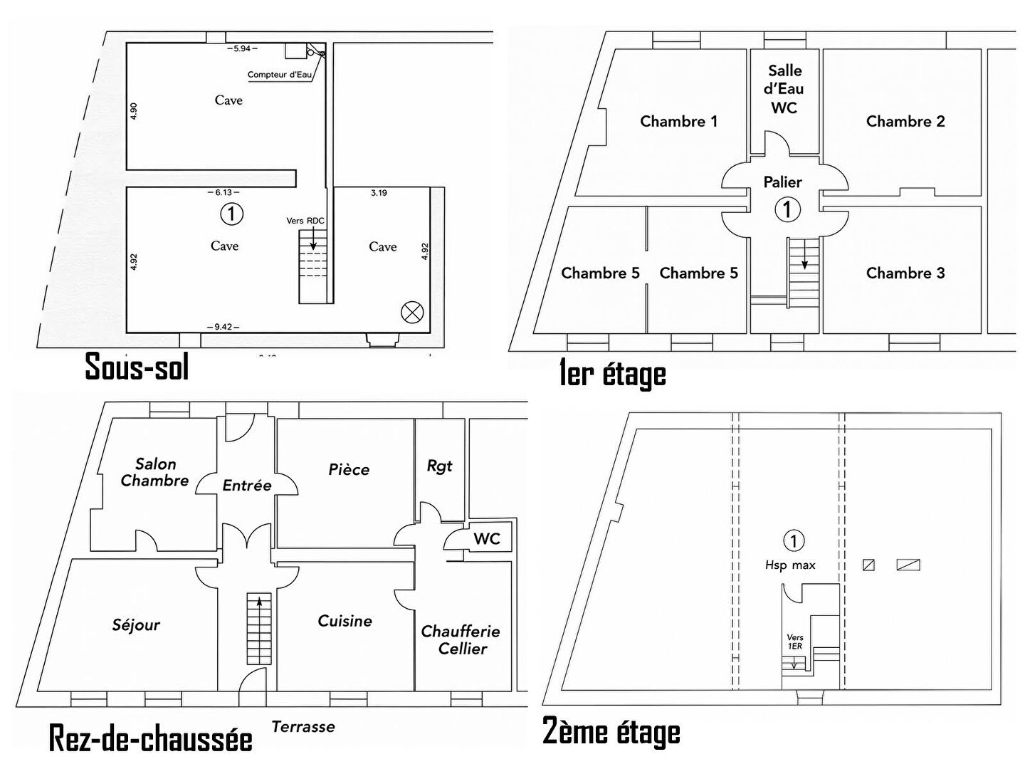
Immeuble 369 m² divisibles en 6 appartements Rendement > 10 % , Jardin + caves , Blainville-sur-l'Eau , secteur calme et recherché Vous cherchez un investissement rentable, sécurisé, simple à valoriser, avec un très fort potentiel locatif ? Ne cherchez plus : cet immeuble de 369 m² habitables répartis sur 3 niveaux offre la possibilité immédiate de créer 6 appartements (4 T2 + 2 T3), avec jardin, caves et terrasse. Points forts du bien : Volume exceptionnel : 369 m² habitables Division idéale en 6 lots (4 T2 + 2 T3) Copropriété existante , division verticale déjà réalisée Facilite la mise en copropriété des lots Réduit fortement les coûts de division Optimise la valeur de revente lot par lot Rentabilité potentielle > 10 % DPE classé D , bonne performance énergétique et isolation. Menuiseries PVC double vitrage récentes Toiture rénovée en 2010 Chauffage gaz + poêle à bois Jardin de 192 m² + terrasse 3 caves saines bétonnées Description du bien Au rez-de-chaussée : 2 appartements aménageables d'environ 55 m² chacun (dont 1 déjà très avancé), avec salons sur jardin, cuisine, salle de bain, chambre, WC séparés. Au 1er étage : 2 appartements aménageables lumineux d'environ 55 m², sols existants conservés, même configuration que le RDC. Au 2ème étage : 2 volumes d'environ 60 m² chacun, sur plateau brut déjà isolé, très bonne hauteur sous plafond, peu de surface non Carrez. Potentiel locatif Loyers estimés : 3 100 euros/mois HC , soit 37 200 euros/an HC Type de biens très recherchés (T2/T3) Rendement brut immédiat potentiel > 9,9 % Jusqu'à 10,5 % avec optimisation des loyers Travaux maîtrisés et économiques Travaux d'aménagement essentiellement intérieurs : cloisons salles de bain cuisines électricité / plomberie Budget travaux estimatif : 115 000 euros à 140 000 euros Aucun gros oeuvre + aucun commun + toiture récente = chantier rapide et économique. Localisation idéale Proche commerces, école, gare SNCF, Nancy, Lunéville, RN57, secteur calme et résidentiel. Contactez nous pour plus de renseignements. Le numéro de téléphone indiqué est la ligne directe de Mr Quentin Gourgouillon Agence Immobilière LOR'N HABITAT 4 place de l'église 54670 Custines Retrouvez l'ensemble de nos biens et plus de photos sur notre site internet. Nos honoraires sont à la charge du vendeur