En vente Appartement 5 pièces

Ville Paris 3ème
Code postal 75003
Type de bien Appartement
Surface
Nombre de pièces 5 pièces
Prix 1 225 000,00 €
Informations sur l'annonceur
Annonce de professionnel
Nom
Adresse
75003
Portable 0682136870

Description

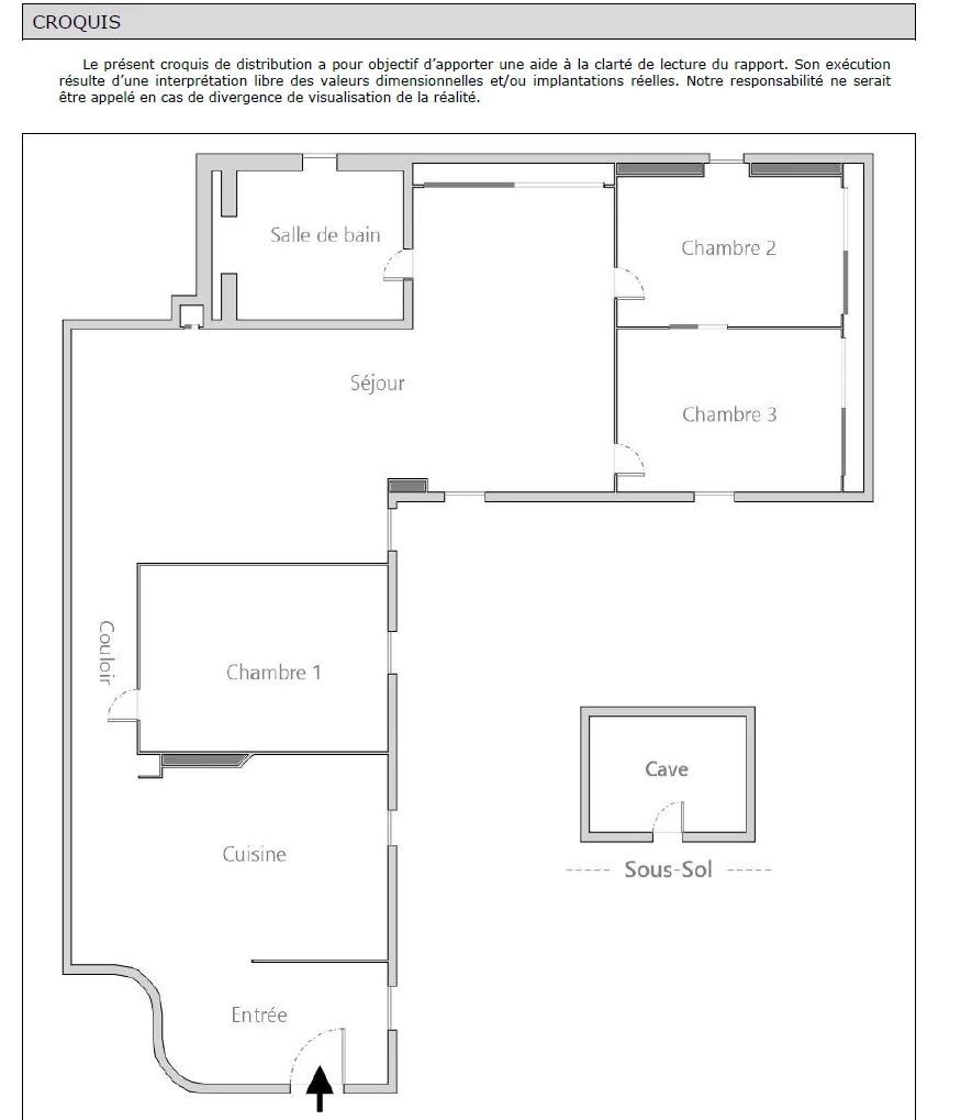
Inserito in un edificio di carattere risalente al 1890, dotato di ascensore e idealmente situato nelle immediate vicinanze del Marais e del Cirque d’Hiver. Questo elegante appartamento di oltre 104 mq offre un contesto abitativo privilegiato, coniugando quiete assoluta e vivacità urbana. Affacciato interamente su un ampio cortile alberato e al riparo da qualsiasi disturbo, gode di un’atmosfera luminosa e serena, rara in un quartiere particolarmente animato. Ristrutturato nel 2020, l’appartamento conquista per i suoi volumi generosi e per la distribuzione degli spazi ottimizzata. La cucina è arredata e completamente attrezzata, con una zona pranzo. La doppia zona giorno, di circa 50 mq, rappresenta un autentico spazio di vita, luminoso e accogliente. Attualmente l’appartamento dispone di due camere da letto, tra cui una spaziosa camera di 16 mq, sapientemente suddivisa per creare un’ulteriore zona notte, consentendo così una possibile configurazione con tre camere da letto in base alle esigenze. Il bagno è dotato di doccia, vasca, doppio lavabo e servizi igienici semi-separati. Numerosi armadi su misura, integrati in tutti gli ambienti, garantiscono una capacità di contenimento rara e particolarmente confortevole. Una proprietà dal marcato carattere parigino, ideale per una residenza familiare o come pied-à-terre di pregio, in uno dei quartieri più ricercati della Rive Droite. Una cantina al piano interrato completa la proprietà.

Les photos du bien

Les diagnostics