En location Appartement 2 pièces 38 m2
| Ville | ARLES |
| Code postal | 13200 |
| Type de bien | Appartement |
| Surface | 38 m2 |
| Nombre de pièces | 2 pièces |
| Prix | 661,00 € |
| Informations sur l'annonceur | |
|---|---|
| Annonce de professionnel |
|
| Agence | GNIMMO - Manaranche Immobilier-Arles - GNIMMO - Manaranche Immobilier-RDO HEKTOR Voir toutes les annonces |
| Adresse | 9, Avenue Victor Hugo |
| 13200 Arles | |
| Téléphone Fixe | 0490960236 |
| Portable |
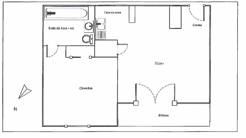
Description
Dans la résidence sécurisée Portes de Camargue à ARLES, avenue Bachaga Saïd Boualem de 38,55m² au 1er étage (sans ascenseur), un T2 meublé comprenant : Une belle pièce à vivre avec placard de rangement donnant sur un balcon d'environ 12m², un coin cuisine meublé et équipé, une chambre séparée avec placard de rangement et une salle de bain avec W.C. Place de parking privative dans la résidence. LOYER C.C (charges comprises : charges copro, T.O.M et EAU) : 661 euros Dépôt de garantie encaissé (deux mois de loyers hors charges) : 1062 euros Honoraires charge locataire : 494 euros