En vente Appartement 1 pièce

Ville Nice
Code postal 06000
Type de bien Appartement
Surface
Nombre de pièces 1 pièce
Prix 150 000,00 €
Informations sur l'annonceur
Annonce de professionnel
Nom
Adresse
06100
Portable 0603468798

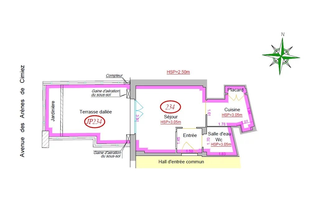
Description

NICE CIMIEZ/ 80 AV DES ARENES DE CIMIEZ. REZ DE TERRASSE DE 16M². LUMINEUX. Ancienne loge de gardien qui se transforme en appartement. Nous sommes syndic de cet immeuble et de cette loge que nous vendons aujourd'hui. Dans un bel immeuble de standing de 1961, en rez de terrasse, studio de 24,40m² donnant sur une terrasse de 16m². Il se compose d'une entrée, un coin cuisine, un séjour donnant sur la terrasse, une salle de douche avec un WC. Exposition ouest. DPE :E&E. Charges : 75€ environ en tout collectif (eau chaude et froide et chauffage compris) Taxe foncière: 1336€. Nombre de lots : 48. Prévoir travaux. Exclusivité C&B.

Les photos du bien

Les diagnostics