En vente Appartement 5 pièces 150 m2
| Ville | Paris |
| Code postal | 75006 |
| Type de bien | Appartement |
| Surface | 150 m2 |
| Nombre de pièces | 5 pièces |
| Prix | 0,00 € |
| Informations sur l'annonceur | |
|---|---|
| Annonce de professionnel |
|
| Agence | PARIS LUXURY HOMES - PARIS LUXURY HOMES Voir toutes les annonces |
| Adresse | 8 place des Victoires |
| 75002 PARIS | |
| Téléphone Fixe | |
| Portable | 0664970111 |
Description
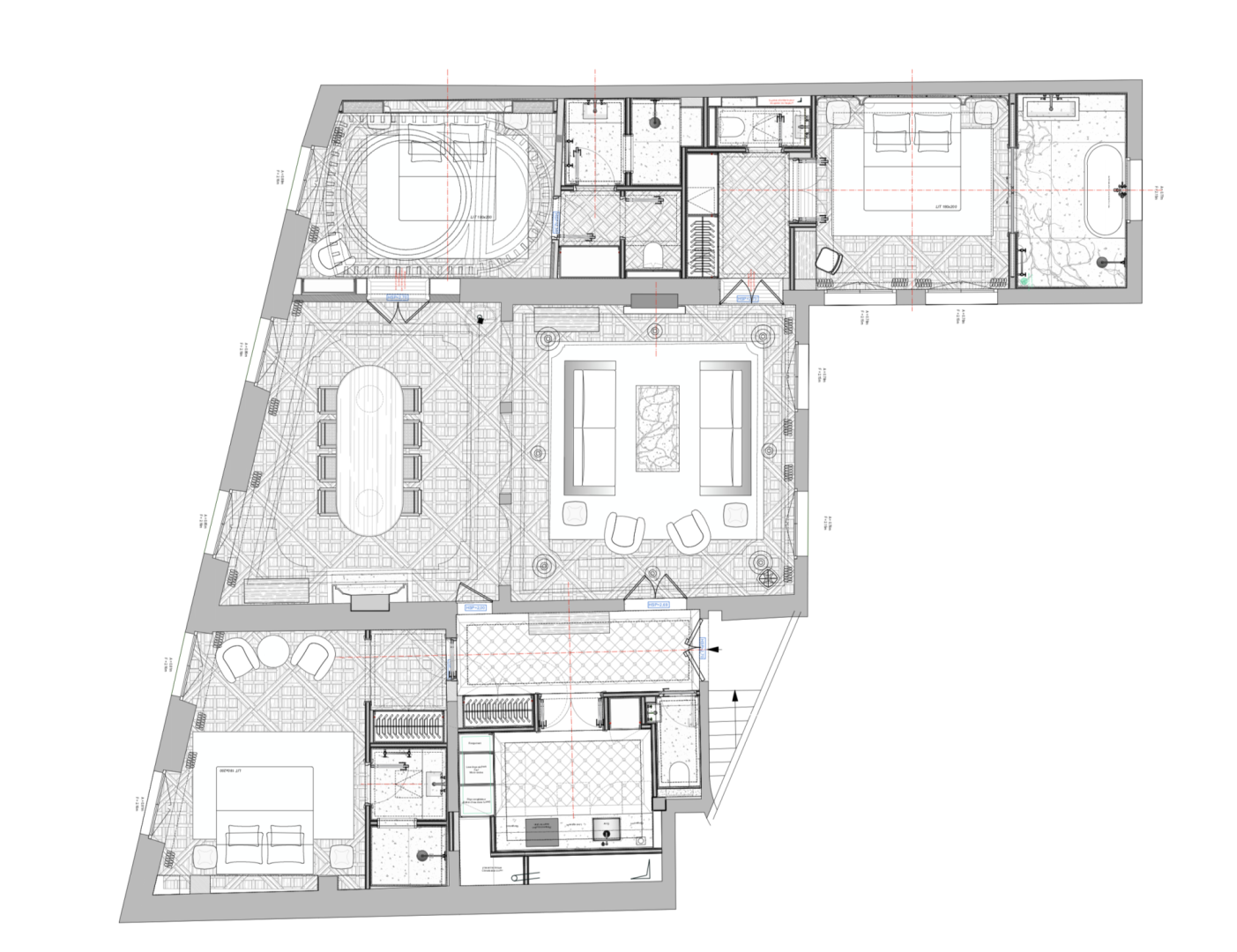
A VENDRE PARIS 6ÈME SAINT-GERMAIN-DES-PRÉS APPARTEMENT D'EXCEPTION Situé rue Bonaparte, au coeur de Saint-Germain-des-Prés, à deux pas du Café de Flore, de la Seine et de l'église Saint-Germain, nous avons le plaisir de vous présenter ce superbe appartement de 150 m2 (148,51m2 loi carrez) situé au 2ème étage noble avec ascenseur d'un immeuble de standing avec gardien. Entièrement rénové par un architecte de renom, il offre un double séjour traversant aux volumes remarquables, sublimé par un parquet Versailles, de magnifiques moulures, une triple arcade et une cheminée fonctionnelle. Salle à manger attenante, cuisine entièrement équipée avec buanderie. La partie nuit propose trois suites, chacune avec dressing et salle d'eau privative, dont une avec baignoire. Matériaux nobles : pierre naturelle, marbre, boiseries sur mesure. Prestations haut de gamme avec chauffage au sol, climatisation, et rénovation d'exception. Immeuble sécurisé avec gardien. Un bien rare, situé dans l'une des adresses les plus prestigieuses de Paris. BIEN UNIQUE A SAISIR ! A VISITER SANS PLUS TARDER ! Bien proposé en exclusivité par l'agence PARIS LUXURY HOMES. Visites et renseignements 7/7, visite virtuelle disponible sur demande. Copropriété de 67 lots ().