En vente Maison 5 pièces 90 m2
| Ville | DOMMARY BARONCOURT |
| Code postal | 55240 |
| Type de bien | Maison |
| Surface | 90 m2 |
| Nombre de pièces | 5 pièces |
| Prix | 125 000,00 € |
| Informations sur l'annonceur | |
|---|---|
| Annonce de professionnel |
|
| Agence | Five Stars Piennes Voir toutes les annonces |
| Adresse | 3 Place Jean Jaurès |
| 54490 PIENNES | |
| Téléphone Fixe | 0970669965 |
| Portable |
Description
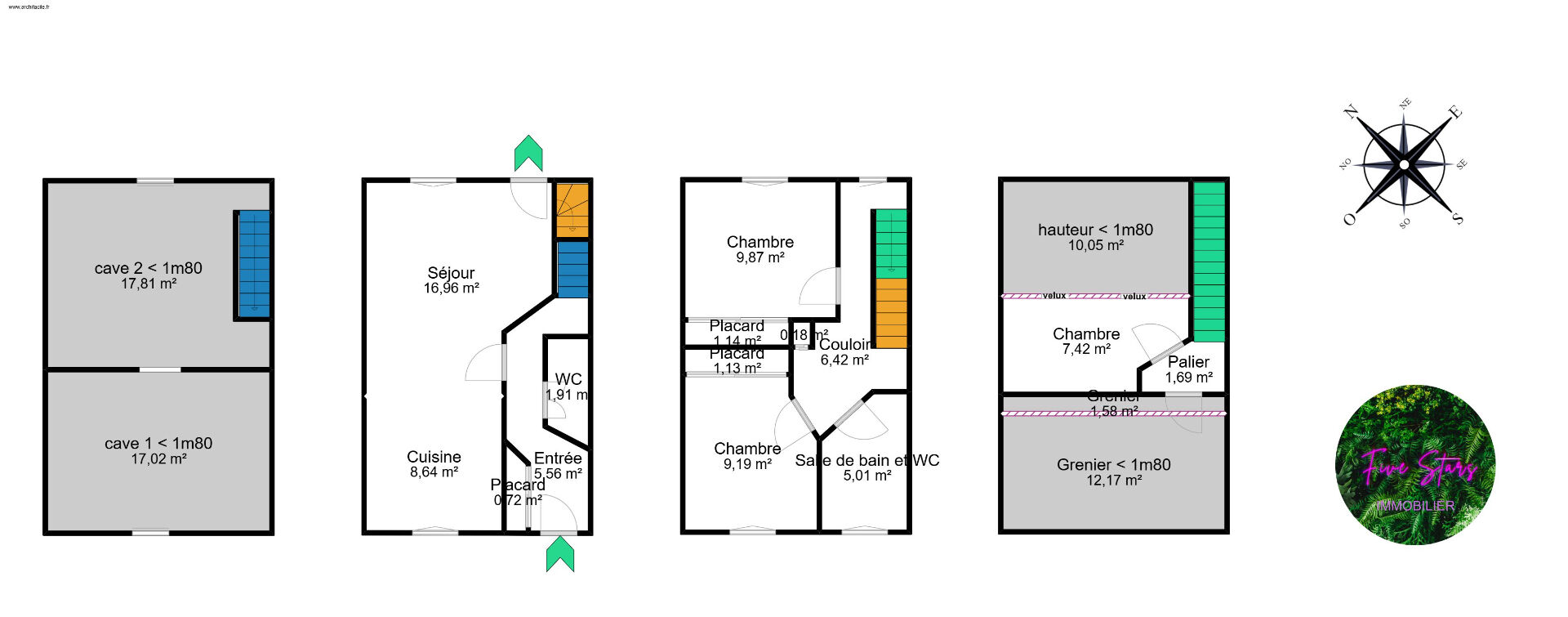
Five Stars Immobilier vous propose à la vente... Une maison mitoyenne d'un côté de 90 m² habitables répartis sur deux niveaux avec garages, cave, terrasse et jardin. C'est à DOMMARY-BARONCOURT, à 10 minutes d'Etain, 35 minutes d'Esch sur Alzette Au rez de chaussée : vous accédez à l'entrée de 6 m² avec placard, à un toilette, ainsi qu'à une pièce de vie de 17 m² avec cuisine américaine équipée de 9 m² et un accès direct à la terrasse et au jardin. Vous trouvez également l'accès à la cave aménagée de 35 m². Au premier étage : vous disposez de deux chambres de 10 m² avec placards, une salle de bain avec toilette de 5 m². Au second étage : vous profitez d'une troisième chambre d'environ 17 m² et d'un grenier. A l'extérieur, vous bénéficiez de deux garages indépendants. A SAVOIR : Assainissement tout à l'égout, chauffage électrique (radiateurs neufs) et fourneau à granules neuf. A PROXIMITE : supermarchés, pharmacie, médecins, écoles, collèges et lycées... VILLES ALENTOURS : Piennes, Etain, Audun le Roman, Esch sur Alzette, Jarny TRANSPORT : A4 direction Paris, Nancy, Metz, Strasbourg Une visite ? Appelez-nous ! Marc MEYER (EI) Agent Commercial - Numéro RSAC : 952982726 - Nancy.