En vente Appartement 3 pièces 75 m2
| Ville | Wimille |
| Code postal | 62126 |
| Type de bien | Appartement |
| Surface | 75 m2 |
| Nombre de pièces | 3 pièces |
| Prix | 375 650,00 € |
| Informations sur l'annonceur | |
|---|---|
| Annonce de professionnel |
|
| Agence | AGENCE DE LA CÔTE D'OPALE Voir toutes les annonces |
| Adresse | 202 avenue de la Forêt |
| 62360 LA CAPELLE LES BOULOGNE | |
| Téléphone Fixe | 0988096544 |
Description
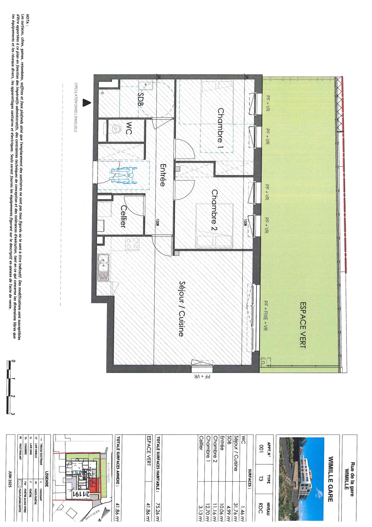
Situé sur les hauteurs de WIMILLE à proximité de la gare et de la station balnéaire de WIMEREUX, nous vous proposons ce bel appartement au rez-de-chaussée d'un immeuble neuf à l'architecture contemporaine.
Ce bien, d'une superficie de 75.26 m2, se compose : d'une entrée, d'une pièce de vie, d'un cellier, de deux chambres, d'une salle de bain et de WC indépendant .
Il comporte également d'un jardin privatif de 41.86 m2.
Les prestations intérieures sont clefs en mains, avec un large choix au sein de la gamme proposée par le promoteur.
La construction respecte la règlementation environnementale 2020 (RE2020) assurant un confort optimal tant en hiver qu'en été.
Les travaux sont en cours et la livraison est prévue au quatrième trimestre 2026.
Des garages en sous sol sont également disponibles à l'achat au sein de cette opération.
Ne tardez pas à nous contacter rapidement pour en savoir plus.
06 64 11 74 69
Les photos du bien
Les diagnostics
Les informations complémentaires
Appartement RDC T3 - NEUF
Prix de vente honoraires TTC inclus : 375 698 €