En vente Immeuble 9 pièces 195 m2

Ville Kuttolsheim
Code postal 67520
Type de bien Immeuble
Surface 195 m2
Nombre de pièces 9 pièces
Prix 577 500,00 €
Informations sur l'annonceur
Annonce de professionnel
Agence MAPS IMMOBILIER
Voir toutes les annonces
Adresse 19, Rue de Molsheim
67120 Soultz-les-Bains
Téléphone Fixe 0388485817

Description

Nouvelle exclusivité Maps Immobilier !

Idéal Investisseurs !

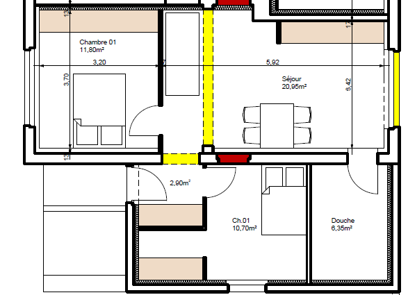
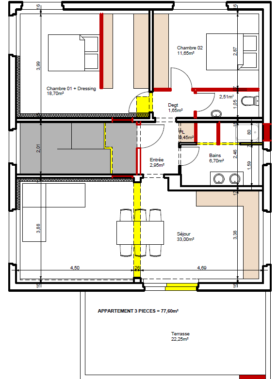
Dans un cadre bucolique, à proximité immédiate du lac de Kuttolsheim, venez découvrir ce très bel immeuble 9 pièces de 195 m2 entièrement refait à neuf.

Le bien se compose de 3 appartements (un 2 pièces de 45 m2 et deux 3 pièces de 77 et 53 m2) et d'un comble à aménager en studio.

Chaque logement bénéficie de sa cave et de deux places de stationnements extérieures.

Une opportunité rare, idéale pour un investissement de qualité !

Pour toute demande de renseignements, votre contact : Raphaël JOST 07.88.06.41.30

Les photos du bien

Les diagnostics

Les informations complémentaires

Immeuble 9 pièces 195 m2
Prix de vente honoraires TTC inclus : 550 000 €