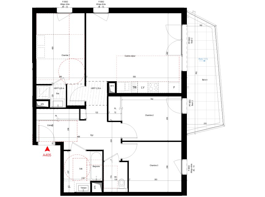
En vente Appartement 4 pièces 78 m2
| Ville | CALUIRE ET CUIRE |
| Code postal | 69300 |
| Type de bien | Appartement |
| Surface | 78 m2 |
| Nombre de pièces | 4 pièces |
| Prix | 423 000,00 € |
| Informations sur l'annonceur | |
|---|---|
| Annonce de professionnel |
|
| Agence | ASINVESTIMMO - ASINVESTIMMO Voir toutes les annonces |
| Adresse | 44 rue Brunel |
| 75017 PARIS | |
| Téléphone Fixe | 0140558181 |
Description
Dernière opportunité ! A CALUIRE je vous propose à la vente ce très beau T4 de 77,50m² avec sa Terrasse de 11,80m² dans une prochaine résidence de standing aux dernières normes comprenant : Une entrée, un séjour avec cuisine ouverte donnant sur la terrasse, trois chambres, une salle de bain, une salle d'eau et un WC. Résidence contemporaine aux très belles prestations intérieures Bâtiment basse consommation, faibles charges Visuel non contractuel Merci de contacter votre conseiller Grégory pour plus d'informations Copropriété de 51 lots - dont 51 lots habitation. (Pas de procédure en cours). Charges annuelles : 1500 euros.