En vente Appartement 5 pièces 209 m2
| Ville | Vaugneray |
| Code postal | 69670 |
| Type de bien | Appartement |
| Surface | 209 m2 |
| Nombre de pièces | 5 pièces |
| Prix | 520 000,00 € |
| Informations sur l'annonceur | |
|---|---|
| Annonce de professionnel |
|
| Agence | Solvimo Lyon4 Voir toutes les annonces |
| Adresse | 17 rue de Belfort |
| 69004 LYON | |
| Téléphone Fixe | 0482533509 |
Description
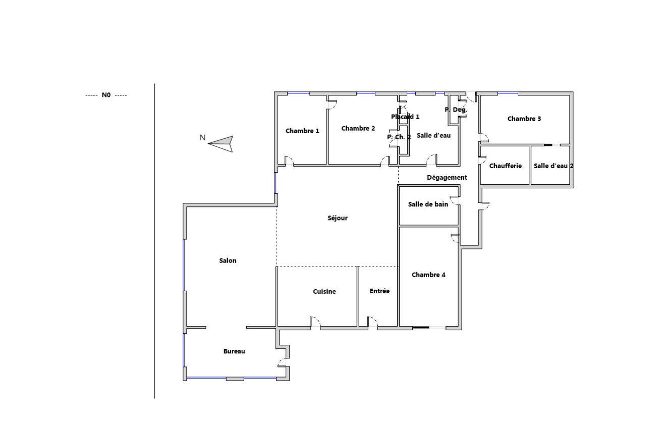
Votre agence Nestenn Croix-Rousse vous propose ce bien d'exception développant 174 m² habitables, complété par un bungalow indépendant de 35 m², situé en rez-de-jardin d'une villa divisée en trois logements dont nous occupons tous le RDJ, au coeur d'un environnement naturel privilégié à Vaugneray. Entièrement rénové avec des prestations haut de gamme, cet appartement offre un cadre de vie rare, conjuguant volumes spectaculaires, élégance contemporaine et sérénité absolue. Dès l'entrée, vous découvrez une pièce de vie de 80 m², baignée de lumière, aux espaces harmonieusement décloisonnés. La cuisine italienne haut de gamme, aux finitions soignées et entièrement intégrée, s'ouvre sur un vaste salon et une salle à manger conviviale. Les larges baies vitrées prolongent naturellement les volumes vers l'extérieur, tandis qu'une cheminée apporte une atmosphère chaleureuse et raffinée. Un parquet en chêne posé en Point de Hongrie traverse les pièces principales et les chambres, renforçant le caractère et la continuité esthétique de l'ensemble. L'espace nuit propose trois suites avec salle d'eau ou salle de bain privative, garantissant confort et intimité à chacun. Une quatrième pièce, modulable, pourra accueillir un bureau, une chambre supplémentaire ou un dressing selon vos besoins. A l'extérieur, vous profitez d'une terrasse de 50 m² exposée Ouest, idéale pour les fins de journée ensoleillées, ainsi que d'un jardin arrière propice au calme et à la détente. La propriété bénéficie également d'un accès à une piscine collective, implantée à l'écart du logement afin de préserver la tranquillité des lieux. Le bungalow indépendant de 35 m², chauffé par pompe à chaleur, constitue un véritable atout : parfait pour recevoir famille et amis, créer un espace professionnel autonome ou envisager un usage locatif ponctuel. Deux places de stationnement complètent ce bien, en plus des stationnements visiteurs. Implanté dans un secteur verdoyant et préservé, ce bien bénéficie d'un cadre champêtre, paisible et ressourçant, loin de l'agitation urbaine, tout en restant à proximité des commodités et des axes vers l'Ouest lyonnais. Un environnement idéal pour celles et ceux qui recherchent espace, nature et qualité de vie. Ses volumes, son niveau de rénovation et son environnement exceptionnel font de cet appartement un bien rare sur le marché. Contactez-nous dès aujourd'hui pour organiser votre visite privée. Les informations sur les risques auxquels ce bien est exposé sont disponibles sur le site Géorisques : www.georisques.gouv.fr