En vente Appartement 3 pièces
| Ville | Caen |
| Code postal | 14000 |
| Type de bien | Appartement |
| Surface | |
| Nombre de pièces | 3 pièces |
| Prix | 199 900,00 € |
| Informations sur l'annonceur | |
|---|---|
| Annonce de professionnel |
|
| Agence | ZERUCHE Voir toutes les annonces |
| Adresse | 35 LONGUE VUE DES ARCHITECTES |
| 14111 Louvigny | |
| Portable | 0673924149 |
Description
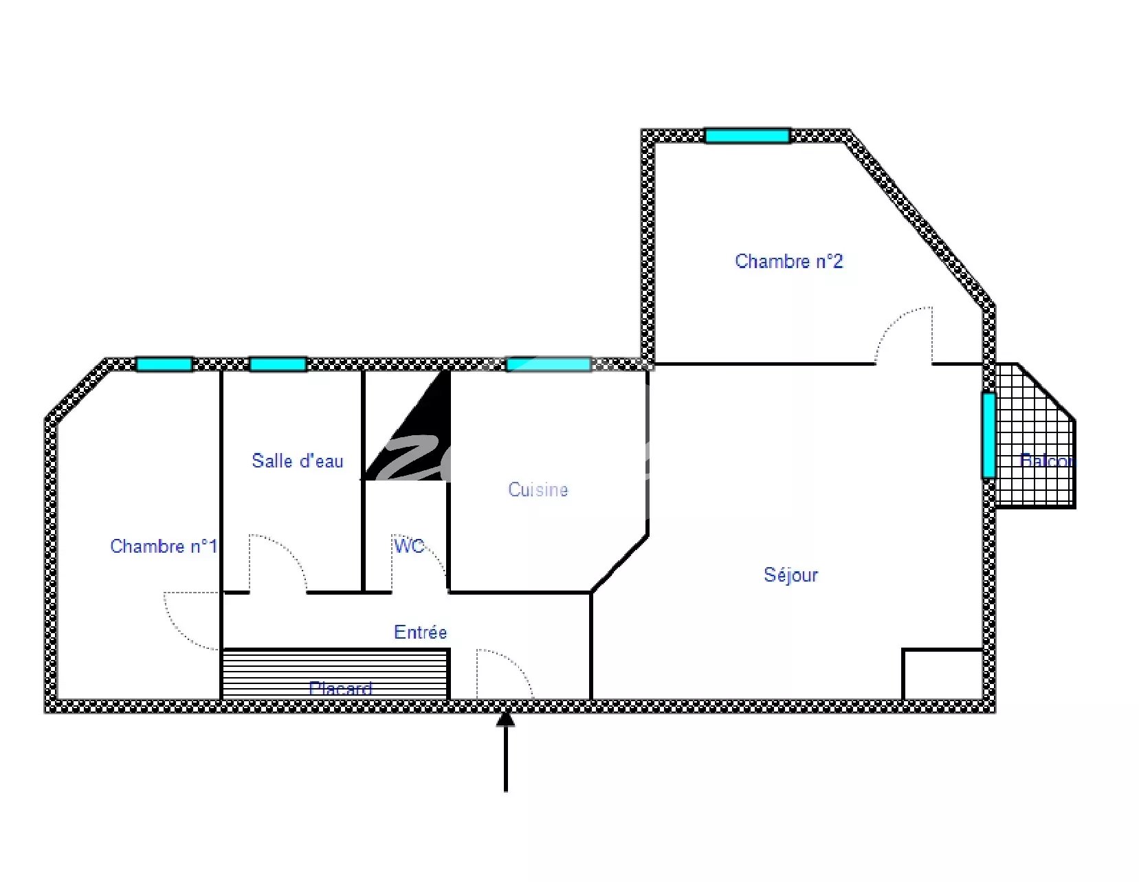
A VENDRE APPARTEMENT CAEN HAIE VIGNE Appartement 3 pièces – Caen Haie Vigné – Exclusivité En exclusivité, découvrez ce bel appartement de 67,1 m² situé dans le quartier recherché de la Haie Vigné à Caen. Bien agencé, il se compose de trois pièces principales, dont deux chambres, et conviendra parfaitement à un couple ou à une petite famille. Le séjour, agréable et fonctionnel, s’ouvre sur un balcon offrant une vue dégagée, idéal pour profiter de moments de détente en extérieur. L’appartement bénéficie de prestations modernes telles que le double vitrage pour un confort thermique optimal, la fibre optique pour un accès internet haut débit, ainsi qu’un digicode assurant une sécurité renforcée. Un box électrifié ainsi qu’une cave attenante complètent ce bien. La résidence, équipée d’un ascenseur, d’un interphone et d’un système de vidéosurveillance, offre un cadre de vie calme, sécurisé et confortable. Idéalement situé et répondant aux exigences actuelles en matière de confort et de sécurité, cet appartement constitue une opportunité rare et un excellent investissement à Caen. Honoraires à la charge du vendeur - Montant moyen de la quote-part de charges courantes 1,400 €/an - Montant estimé des dépenses annuelles d'énergie pour un usage standard, établi à partir des prix de l'énergie de l'année 2021 : 1194€ ~ 1380€ Les informations sur les risques auxquels ce bien est exposé sont disponibles sur le site Géorisques : www.georisques.gouv.fr