En vente Maison 3 pièces 70 m2
| Ville | SAINT-LO |
| Code postal | 50000 |
| Type de bien | Maison |
| Surface | 70 m2 |
| Nombre de pièces | 3 pièces |
| Prix | 39 500,00 € |
| Informations sur l'annonceur | |
|---|---|
| Annonce de professionnel |
|
| Agence | CABINET FOLLIOT - Cabinet FOLLIOT Voir toutes les annonces |
| Adresse | 577 route de Villedieu |
| 50400 YQUELON | |
| Téléphone Fixe | 0261900515 |
| Portable |
Description
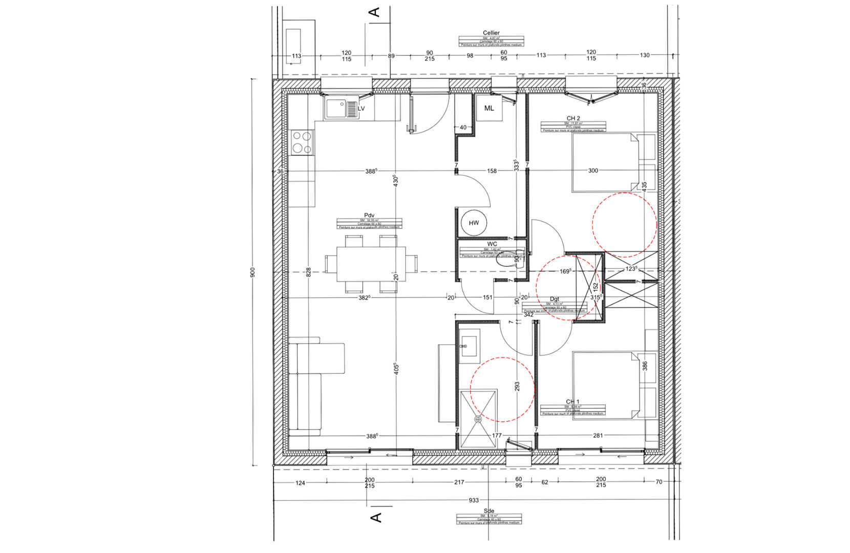
Le Cabinet Folliot vous propose ce terrain idéalement situé à Saint-Lo, à proximité de commerces et de toutes commodités. Un permis de construire est déjà validé, offrant la possibilité de réaliser le projet de maison soit par l'intermédiaire d'un maître d'oeuvre, avec un chiffrage global déjà établi, soit en auto-construction, dans le respect du cahier des charges existant. Ce projet constitue une belle opportunité pour concrétiser rapidement une construction dans un secteur recherché. les informations sur les risques auxquels ce bien est exposé sont disponibles sur le site Géorisques : www.georisques.gouv.fr. Je reste à votre disposition pour tout renseignement complémentaire. 06 21 28 33 03 Pierre Emmanuel LEGOUPIL (EI) Agent Commercial - Numéro RSAC : 751 823 071 - COUTANCES.