En vente Appartement 3 pièces 64 m2
| Ville | TOULOUSE |
| Code postal | 31100 |
| Type de bien | Appartement |
| Surface | 64 m2 |
| Nombre de pièces | 3 pièces |
| Prix | 129 000,00 € |
| Informations sur l'annonceur | |
|---|---|
| Annonce de professionnel |
|
| Agence | IMMO de France - Toulouse - Balma Voir toutes les annonces |
| Adresse | |
| 31130 Balma | |
| Téléphone Fixe | 0561730364 |
Description
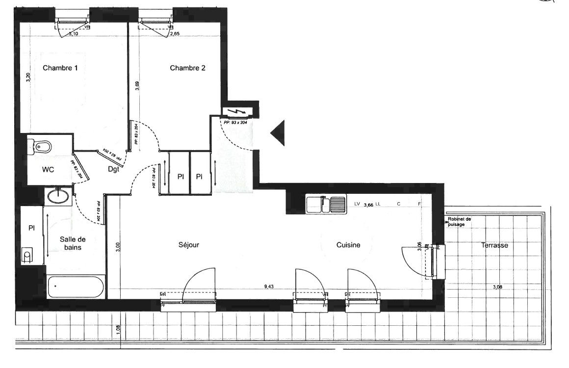
APPARTEMENT T3 TOULOUSE SUD - ONCOPOLE - ST SIMON - PARKING Votre agence Immo de France à le plaisir de vous proposer à la vente cet appartement T3 au dernier étage. Il se compose d'une entrée avec placard, d'un grand séjour double avec cuisine aménagée, Le coin nuit est composé de 2 chambres, d'une salle de bain et d'un wc séparée. Cet appartement au dernier étage bénéficie d'une très belle terrasse sans vis à vis de 20m2, exposée Sud Ouest. Une place de parking en sous-sol complète ce bien. La résidence se situe à proximité des commerces et de l'ONCOPOLE, BUS L4 au pied de la résidence. L'appartement est vendu libre d'occupation. AUCUN TRAVAUX A PREVOIR. (5.25 % honoraires TTC à la charge de l'acquéreur.) Copropriété de 47 lots - dont 47 lots habitation. Charges annuelles : 1136 euros.