En vente Appartement 5 pièces 155 m2
| Ville | Sanremo |
| Pays | Italie |
| Type de bien | Appartement |
| Surface | 155 m2 |
| Nombre de pièces | 5 pièces |
| Prix | 830 000,00 € |
| Informations sur l'annonceur | |
|---|---|
| Annonce de professionnel |
|
| Agence | Royal House Voir toutes les annonces |
| Adresse | Via Tullio Molteni, 2 |
| 16151 Genova |
Description
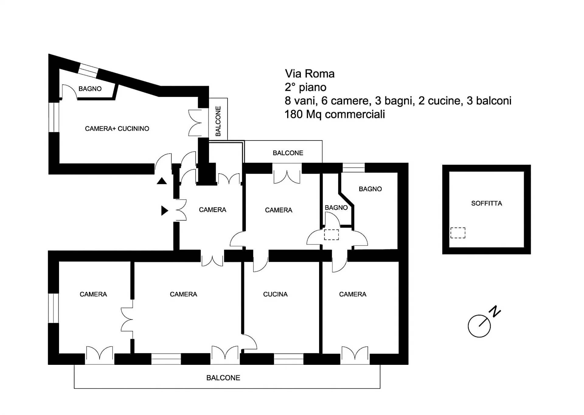
**Appartamento in Stile Liberty nel Cuore di Sanremo** Scopri un'affascinante opportunità nel cuore di Sanremo! Questo appartamento in stile liberty, situato al secondo piano di un palazzo storico, offre un'atmosfera unica e affascinante. Con una superficie commerciale di 190 m² e 185 m² calpestabili, l'immobile si compone di un ampio ingresso, un luminoso salone con balconata, una piccola sala , due camere da letto, due bagni, una cucina funzionale e un monolocale con ingresso indipendente. L'ascensore rende l'accesso facile e comodo, mentre l'orientamento a sud garantisce luce naturale durante tutto il giorno. Sebbene necessiti di un raffrescamento e innovazione, questo appartamento ha un'ottima potenzialità per diventare la dimora dei tuoi sogni. Con la sua storia che risale al 1900, ogni angolo racconta una storia e offre spunti per personalizzarlo secondo il tuo stile. Non perdere l'occasione di trasformare questo spazio in un rifugio esclusivo nel cuore della Riviera dei Fiori!