En vente Appartement 5 pièces 127 m2
| Ville | PARIS |
| Code postal | 75011 |
| Type de bien | Appartement |
| Surface | 127 m2 |
| Nombre de pièces | 5 pièces |
| Prix | 1 332 500,00 € |
| Informations sur l'annonceur | |
|---|---|
| Annonce de professionnel |
|
| Agence | ESPACES ATYPIQUES Paris - Est Voir toutes les annonces |
| Adresse | |
| 75004 Paris | |
| Téléphone Fixe | 0142710384 |
Description
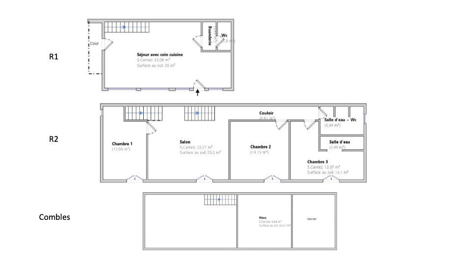
A l'abri du tumulte parisien et à seulement quelques pas de la Place de la Nation, cet ancien atelier réhabilité en duplex de 144 m² (118 m² Carrez) se dévoile au coeur d'une ravissante cour arborée. Entièrement repensé pour profiter d'une vie de famille sereine, ce lieu se développe sur deux niveaux. Le rez-de-chaussée accueille une vaste pièce de vie de 35 m² (33m2 carrez), rythmée par de nombreuses ouvertures. Elle intègre une cuisine américaine s'ouvrant sur un petit extérieur idéal pour des petits-déjeuners d'été. Une buanderie et un WC indépendant complètent ce niveau. Un escalier en bois mène à l'étage supérieur où le volume prend toute sa dimension. Un second lieu de vie de 25 m² est magnifié par une hauteur sous plafond de plus de 4 mètres et une charpente apparente savamment mise en lumière par des fenêtres de toit. Au même niveau, vous disposez d'une première chambre, puis en longeant un couloir, on découvre une deuxième chambre avec son point d'eau, une troisième chambre avec salle d'eau et enfin une salle d'eau avec WC. Les combles, partiellement aménagés, accueillent aujourd'hui un espace bureau, complété par un grenier offrant une capacité de stockage supplémentaire. Cet appartement à usage mixte bureau et habitation est soumis au statut de la copropriété. Métro : Nation CLASSE ÉNERGIE : C / CLASSE CLIMAT : B Estimation des coûts annuels : entre 2 530 euros et 3 470 euros par an Prix moyens des énergies indexés sur les années 2021, 2022, 2023 Les informations sur les risques auxquels ce bien est exposé sont disponibles sur le site Géorisques : www.georisques.gouv.fr Contact : Lisa 06.51.77.35.67 RSAC : 843 915 679 Bordeaux Copropriété de 103 lots - dont 45 lots habitation. Charges annuelles : 2812 euros. Lisa VIDAL (EI) Agent Commercial - Numéro RSAC : 843 915 679 - Bordeaux.