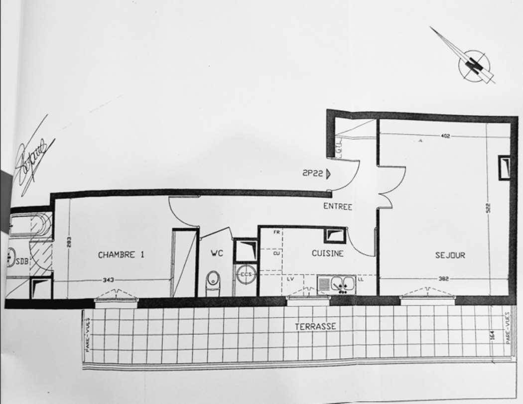
En vente Appartement 2 pièces 58 m2
| Ville | ASNIERES SUR SEINE |
| Code postal | 92600 |
| Type de bien | Appartement |
| Surface | 58 m2 |
| Nombre de pièces | 2 pièces |
| Prix | 370 000,00 € |
| Informations sur l'annonceur | |
|---|---|
| Annonce de professionnel |
|
| Agence | Mon Eden Immobilier Colombes - Mon Eden Immobilier Voir toutes les annonces |
| Adresse | 12 Passage des Hortensias |
| 92700 COLOMBES | |
| Téléphone Fixe | 0788801628 |
| Portable |
Description
Asnières-sur-Seine -Centre Gabriel Péri (92600) Dans une résidence récente (2002), découvrez ce magnifique 2 pièces au dernier étage, entièrement bordé par une terrasse de 19m² exposée Sud-Ouest, idéale pour profiter du ciel dégagé et des couchers de soleil. L'appartement, modulable en 3 pièces, se compose d'une entrée avec placard, d'un lumineux séjour de 20 m², d'une cuisine séparée (possibilité d'ouverture), de WC indépendants ainsi que d'une vaste chambre avec sa salle de bains attenante.( parking poss en sus pour 20000 euros) Toutes les pièces s'ouvrent sur la terrasse, offrant une belle continuité entre intérieur et extérieur. Un rafraîchissement est à prévoir, mais le potentiel et l'emplacement sont exceptionnels : Métro Gabriel Péri à 5 minutes, Hôtel de Ville à 10 minutes, Gare à 15 minutes. Un bien rare sur le secteur, à visiter sans tarder ! libération fin Avril 2026 (3.35 % honoraires TTC à la charge de l'acquéreur.) Copropriété de 49 lots - dont 24 lots habitation. Charges annuelles : 1076 euros.