En location Maison 7 pièces
| Ville | Champagne-au-Mont-d'Or |
| Code postal | 69410 |
| Type de bien | Maison |
| Surface | |
| Nombre de pièces | 7 pièces |
| Prix | 3 595,00 € |
| Informations sur l'annonceur | |
|---|---|
| Annonce de professionnel |
|
| Agence | Grand Lyon Immobilier Voir toutes les annonces |
| Adresse | 25 rue Vauban |
| 69006 Lyon 6ème | |
| Téléphone Fixe | 00981689689 |
Description
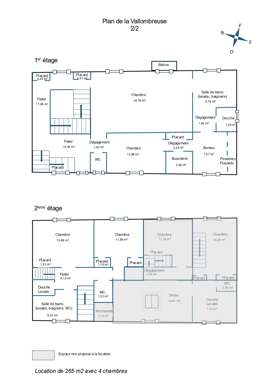
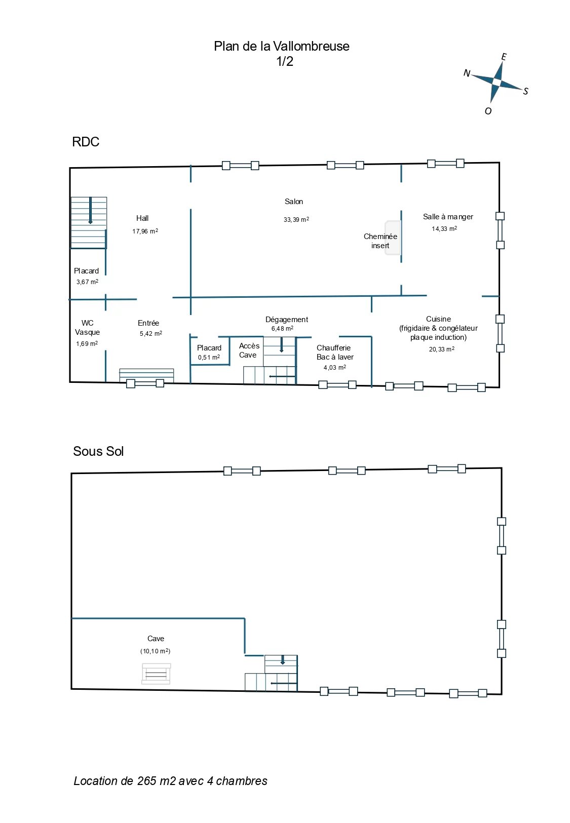
Localisation : à 400 m du centre-ville de Champagne au Mont d'Or et des commerces. Ecoles publiques et privées à proximité : Chartreux-St Joseph, St Dominique Savio. Bus scolaires pour Fromente, Lazaristes, Cité Internationale. Ligne de bus C14 et métro Vaise pour un accès rapide au centre-ville de Lyon Dans une enceinte sécurisée, partie Sud d’une Maison des Champs Directoire édifiée en surplomb du vallon de Rochecardon dans un parc d’1,5 ha clos de murs. Vue dégagée sans vis-à-vis. Calme absolu. Triple exposition Est-Sud-Ouest Deux emplacements de parking dans l’enceinte. Maison entièrement rénovée sur 3 niveaux Au RDC : vaste séjour - salle à manger de 48m2, grande hauteur sous plafond, parquet, moulures, cheminée avec insert. Cuisine équipée avec accès direct à la terrasse au Sud. WC indépendant, espace chaufferie, buanderie et nombreux rangements et cave de 10m2 Au 1er étage : suite parentale de 35m2, salle de bains et une douche attenante, buanderie, dressing ou bureau, 1 chambre de 13 m2. Nombreux placards, penderies et bibliothèques. Au 2e étage : deux chambres, 1 salle de bains et 1 salle de douche, 2 WC. L’ensemble de la maison est mis en valeur par des éléments de décor et des volumes d’époque Directoire, des escaliers en noyer massif avec une rampe réalisée sur mesure par un ferronnier d’art. Atouts de la maison : • Calme absolu, sans vis-à-vis • 265 m² habitables • Jardin privatif et piscine • Stationnements privés • Proximité tous commerces et transports • Très beaux volumes, grande luminosité • Nombreuses possibilités d’aménagement • cave Conditions de location : • Loyer mensuel hors charges : 3 595 € • Charges mensuelles : 255 € comprenant : l’entretien annuel de la piscine et du jardin, une télésurveillance, les charges et menues réparations des parties communes de l’indivision et de la copropriété, les taxes et redevances d’enlèvement des ordures ménagères. • Possibilité de louer en meublé • Dépôt de garantie : 3 595 € • Frais d’agence : 3 906,76 € • Charges régularisées annuellement Modalités de candidature Dossier 100 % en ligne. Les candidats doivent déposer leur dossier via : Rubrique Louer > Dossier de candidature > Lien ZeloK. Les dossiers incomplets ne peuvent pas être étudiés.