En vente Terrain 1236 m2
| Ville | Lormaison |
| Code postal | 60110 |
| Type de bien | Terrain |
| Surface | 1236 m2 |
| Nombre de pièces | |
| Prix | 97 200,00 € |
| Informations sur l'annonceur | |
|---|---|
| Annonce de professionnel |
|
| Agence | SAFTI Voir toutes les annonces |
| Adresse | 118 route d'Espagne |
| 31100 Toulouse | |
| Téléphone Fixe | 0810454540 |
Description
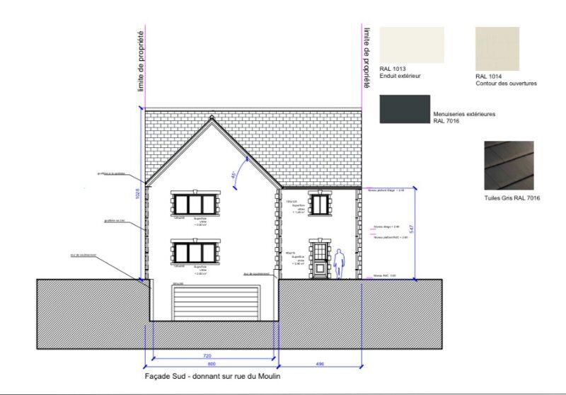
Proche Méru 5mn (lormaison) - Autoroute A16 à 8 minutes. Mon nom est GOLFY, je suis un magnifique terrain borné, non viabilisé, et PLAT de 1200 m² et SANS VIS À VIS d'environ d'une façade de 14 m² en lot arrière. G2 réaliséeUn projet de construction avec sous-sol total a déjà été réalisé par un architecte. À vos téléphones : 06 08 66 11 21Les informations sur les risques auxquels ce bien est exposé sont disponibles sur le site Géorisques : www.georisques.gouv.frPrix de vente : 97 200 ¤Honoraires charge vendeurContactez votre conseiller SAFTI : Hélène CHAPELLE, Tél. : 06 08 66 11 21, E-mail : helene.chapelle@safti.fr - EI - Agent commercial immatriculé au RSAC de BEAUVAIS sous le numéro 793 837 493.Informations LOI ALUR : Honoraires charge vendeur. (gedeon_26118_32143431)
Les photos du bien
Les diagnostics
Les informations complémentaires
Terrain à batir de 1200m2 plat et sans vis à vis