En vente Boutique 12 pièces 126 m2
| Ville | Quimper |
| Code postal | 29000 |
| Type de bien | Boutique |
| Surface | 126 m2 |
| Nombre de pièces | 12 pièces |
| Prix | 420 000,00 € |
| Informations sur l'annonceur | |
|---|---|
| Annonce de professionnel |
|
| Agence | MIZ Partners Voir toutes les annonces |
| Adresse | 71 avenue des ternes |
| 75017 Paris 17ème | |
| Téléphone Fixe | 0760955657 |
Description
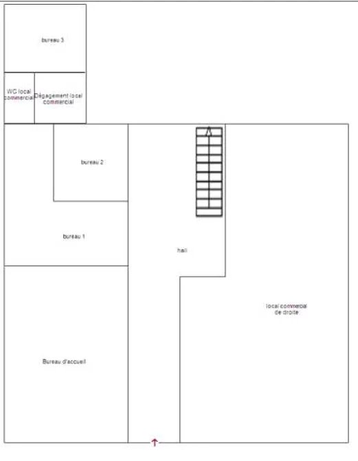
Local commercial entièrement rénové – 4 quai de l’Odet, Quimper Nous proposons à la VENTE un local commercial de 125.55 m² idéalement situé sur le quai de l’Odet, au cœur de Quimper. Cet emplacement bénéficie d’un environnement dynamique avec un fort passage piéton et une excellente visibilité. Caractéristiques : -Surface : 125.55 m² -Local entièrement rénové, aucun travaux à prévoir -Disponibilité immédiate PRIX DE VENTE : 420K FAI Ce local conviendra parfaitement à une activité de commerce, bureau. Les atouts : -Adresse recherchée en bord d’Odet -Environnement commerçant -Belle façade offrant une grande visibilité Pour toute information complémentaire ou organiser une visite, merci de nous contacter.