En vente Appartement 5 pièces 98 m2
| Ville | PARIS |
| Code postal | 75017 |
| Type de bien | Appartement |
| Surface | 98 m2 |
| Nombre de pièces | 5 pièces |
| Prix | 760 000,00 € |
| Informations sur l'annonceur | |
|---|---|
| Annonce de professionnel |
|
| Agence |
ADRESSE EN VILLE - Adresse en ville
Voir toutes les annonces |
| Adresse | 41 AVENUE GEORGES POMPIDOU |
| 92300 Levallois | |
| Téléphone Fixe | +33647611384 |
| Portable | +336476113 |
Description
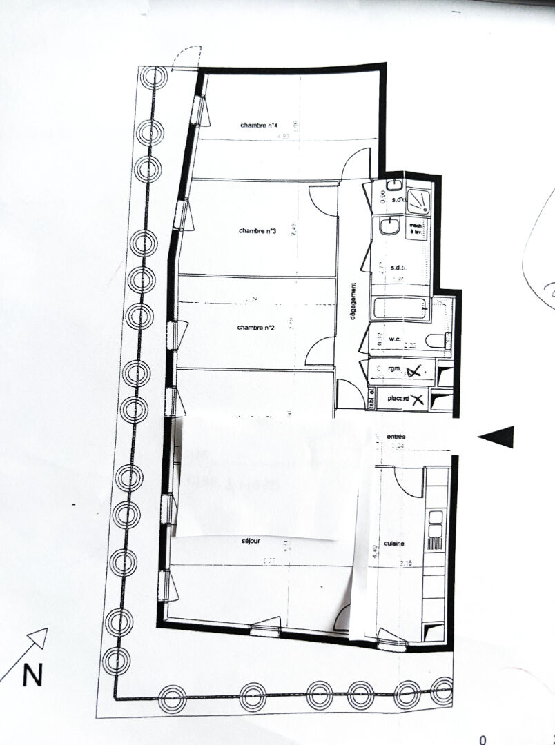
Promesse de vente en cours. Grand balcon au soleil à la vue dégagée sur jardin. Ce superbe appartement de 4/5pièces de 98m2 au sol est ouvert sur un grand balcon-terrasse en étage, plein soleil, offrant une vue très dégagée sur un grand jardin. L'entrée, dotée d'un grand dressing, donne accès à un vaste séjour de 43m2 comprenant une spacieuse cuisine américaine équipée. Une partie nuit distribue ensuite trois chambres (13,70m2, 10,47m2 et 10m2), deux salles de douche, un WC et une buanderie. Il est possible de recréer une 4ème chambre (voir les plans) . Cave et parking en sous-sol, compris dans le prix. 375 euros de charges par mois comprenant l'eau froide, l'eau chaude et le chauffage. L'immeuble de 2004, végétalisé de 380 pots de Bambou, situé rue Albert Roussel, est signé de l'architecte Edouard François. Métro Porte de Clichy à 11m2 et Pt Cardinet à 14 minutes à pieds, trois bus à proximité qui mènent dans Paris et le Tram à côté à 5 minutes. Loi Carrez de 96,50m2. (2.70 % honoraires TTC à la charge de l'acquéreur.) Copropriété de 100 lots - dont 30 lots habitation. Charges annuelles : 4500 euros.