En vente Appartement 2 pièces 40 m2

Ville MARSEILLE
Code postal 13009
Type de bien Appartement
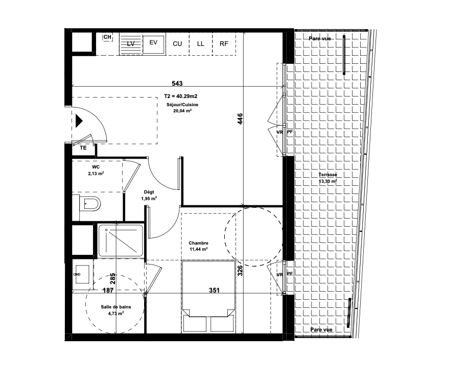
Surface 40 m2
Nombre de pièces 2 pièces
Prix 199 000,00 €
Informations sur l'annonceur
Annonce de professionnel
Agence RP IMMOBILIER - RP IMMOBILIER
Voir toutes les annonces
Adresse 106, avenue de la Corse
13007 Marseille
Téléphone Fixe
Portable 0685096953

Description

T2 récent avec grande terrasse - Résidence 2023 - Calme et lumineux - Parc Maison Blanche Rue Gaston Berger - 13010 Au sein d'une résidence récente livrée en 2023, parfaitement entretenue et entourée d'espaces verts, découvrez ce superbe appartement T2 de 40 m² situé au 3e étage sur 5 avec ascenseur. L'appartement séduit immédiatement par sa luminosité, son calme et sa belle terrasse de 13,33 m² exposée sud-est, idéale pour profiter des beaux jours. Il bénéficie également d'un emplacement recherché, à seulement 7 minutes à pied du Parc de la Maison Blanche, l'un des grands espaces verts du secteur. Agencement     -   Séjour avec cuisine ouverte équipée : 20 m²     -   Chambre confortable : 11,44 m²     -    Salle de bain : 4,73 m²     -   WC séparés L'ensemble est en excellent état, avec des prestations modernes et une distribution très fonctionnelle. Prestations     -   Résidence livrée en 2023 (encore sous garantie décennale)     -    Cuisine équipée récente     -    Alarme installée     -    Possibilité d'installation de climatisation     -    radiateurs thermostatiques individuels par chaudière     -    Ascenseur     -    Environnement très calme et verdoyant Copropriété     -    Charges : 90 euros / mois     -    Taxe foncière : 343 euros Stationnement Place de stationnement disponible en supplément. Lors de la dernière assemblée générale, plusieurs améliorations ont été votées et adoptées :     -   Possibilité de boxer les places de stationnement     -    Installation de vidéosurveillance     -    Bornes de recharge pour véhicules électriques Les + qui font la différence     -    Résidence très récente     -    Grande terrasse     -    Très lumineux     -    Calme     -    Proximité du parc     -    Faibles charges Appartement idéal pour résidence principale, premier achat ou investissement locatif. Copropriété de 80 lots - dont 40 lots habitation. Charges annuelles : 1080 euros.

Les photos du bien

Les diagnostics