En location Appartement 2 pièces 42 m2
| Ville | Toulouse |
| Code postal | 31000 |
| Type de bien | Appartement |
| Surface | 42 m2 |
| Nombre de pièces | 2 pièces |
| Prix | 870,00 € |
| Informations sur l'annonceur | |
|---|---|
| Annonce de professionnel |
|
| Agence | Benoît Lannes Immobilier Voir toutes les annonces |
| Adresse | |
| 31150 Lespinasse | |
| Négociateur | BENOÎT LANNES IMMOBILIER |
| Téléphone | 06-31-63-48-51 |
Description
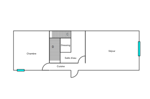
Esquirol - T2 meublé de 42,53 m². Situé rue des Changes, au pied du métro Esquirol, nous vous proposons à la location ce charmant T2 entièrement meublé et équipé. L'appartement se situe au premier étage d'une petite copropriété, il est composé d'une belle pièce de vie avec cuisine ouverte, une chambre au calme, une salle d'eau ainsi qu'un large espace de rangements. Vous serez charmé par le cachet de l'ancien, briques, poutres et sa décoration soignée. Classement DPE en E. Idéal étudiant, jeune couple. Composition des pièces : Séjour / cuisine : 29,08 m². Chambre : 6,98 m². Salle d'eau : 4,46 m². Dressing : 2 m² Loyer HC : 820EUR. Loyer CC : 870EUR Provisions pour charges : 50EUR (incluant eau, entretien des parties communes, taxe d'ordures ménagères). Dépôt de garantie : 820EUR. Honoraires agence : 552,89EUR. Pour plus de renseignements, veuillez contacter l'agence BENOIT LANNES IMMOBILIER au 06 78 69 46 14.1.Informations LOI ALUR :
Soumis au régime de copropriété. Nombre de lots : 25.
Charges : 50 ¤ /mois. Règlement des charges : provisionnel. Honoraires locataire : 553 ¤ TTC. Dont honoraires état des lieux : 3 ¤. Surface (arrondie) : 42 m². Appartement meublé. (gedeon_90737_32120955)