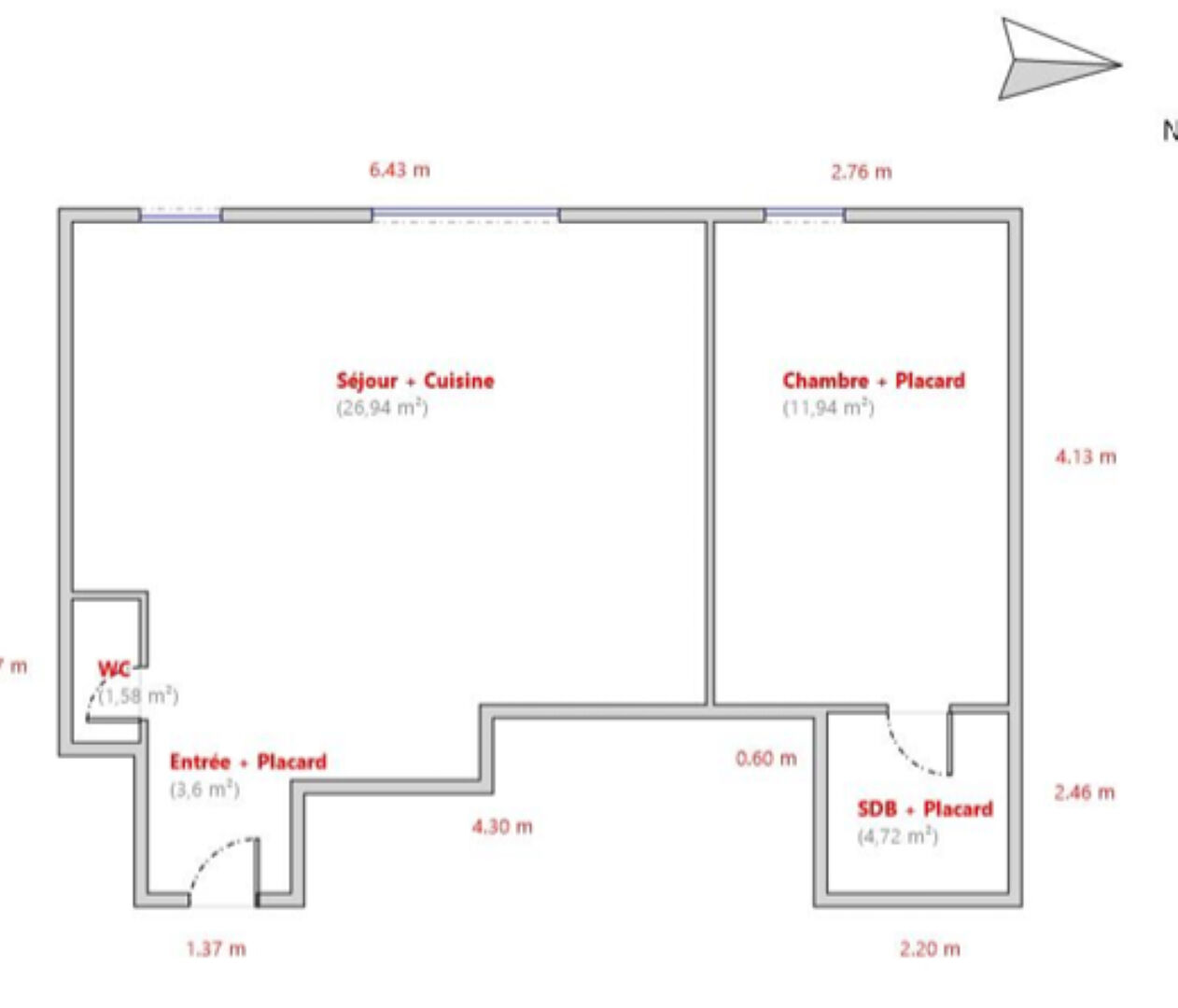
En vente Appartement 2 pièces 57 m2
| Ville | LA GARENNE COLOMBES |
| Code postal | 92250 |
| Type de bien | Appartement |
| Surface | 57 m2 |
| Nombre de pièces | 2 pièces |
| Prix | 349 000,00 € |
| Informations sur l'annonceur | |
|---|---|
| Annonce de professionnel |
|
| Agence | Mon Eden Immobilier Colombes - Mon Eden Immobilier Voir toutes les annonces |
| Adresse | 12 Passage des Hortensias |
| 92700 COLOMBES | |
| Téléphone Fixe | 0788801628 |
| Portable |
Description
A VENDRE 92700 Colombes / Gare de La Garenne Colombes et Tramway La Défense T2 Quartier Petite Garenne Dans une résidence récente (années 90), découvrez ce superbe rez-de-jardin niché au calme, offrant une véritable bulle de sérénité en plein coeur d'un quartier urbain recherché. Ce bien rare se compose d'une grande pièce de vie sur jardin (2,8m de hauteur) avec cuisine américaine équipée et îlot central, le tout ouvert sur un jardin privatif de 78 m², sans vis-à-vis, idéal pour profiter de l'extérieur en toute intimité. Une chambre confortable, une salle de bains et des toilettes indépendants complètent ce bien sans aucune perte d'espace. Toutes les pièces s'ouvrent sur le jardin sans aucun vis-à-vis, offrant une ambiance maison à seulement 10 minutes de La Défense et de la gare Saint Lazare. Une cave en sous-sol et un parking pour 22000 euros en sus agrémentent cette offre ! Atouts supplémentaires : * Commerces à coté. * Marché de La Garenne Colombes à 10 minutes à pied * Gare accessible rapidement * Résidence bien entretenue Idéal pour les amoureux des espaces extérieurs, les actifs en quête de calme à proximité de Paris ou encore un jeune couple souhaitant allier confort, verdure et accessibilité. Copropriété de 118 lots - dont 28 lots habitation. (Non soumis à un impayé). Charges annuelles : 1700 euros.