En vente Maison 5 pièces

Ville Solaro
Code postal 20240
Type de bien Maison
Surface
Nombre de pièces 5 pièces
Prix 430 000,00 €
Informations sur l'annonceur
Annonce de professionnel
Nom
Adresse
20227
Téléphone Fixe 0495307669

Description

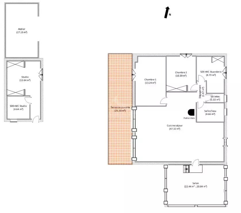
Située dans un environnement calme et agréable sur la commune de Solaro, cette charmante villa de 108m² habitables plus un studio indépendant de 18m² avec salle d'eau, construite en 2011, vous séduira par son confort et son cadre de vie paisible. Implantée sur un terrain entièrement clos de 661 m², la maison offre une belle pièce de vie lumineuse comprenant séjour, salon et cuisine ouverte, créant un espace convivial et chaleureux. Un poêle à bois ainsi qu’une climatisation dans toutes les chambres et dans le séjour assurent un confort optimal toute l’année. La partie nuit se compose de deux chambres, chacune disposant de sa salle d’eau avec douche à l’italienne, ainsi qu’un toilette indépendant . Un studio indépendant complète ce bien : idéal pour un adolescent, pour recevoir des invités ou pour un projet locatif, il dispose de sa propre salle d’eau et toilette. À l’extérieur, vous profiterez d’une belle terrasse ouverte sur l’espace piscine et le jacuzzi, parfait pour des moments de détente en toute intimité. Une villa fonctionnelle et agréable à vivre, idéale pour une résidence principale ou secondaire dans un secteur recherché a 3 minutes de la plage.

Les photos du bien

Les diagnostics