En vente Appartement 3 pièces 59 m2
| Ville | CHARENTON LE PONT |
| Code postal | 94220 |
| Type de bien | Appartement |
| Surface | 59 m2 |
| Nombre de pièces | 3 pièces |
| Prix | 344 000,00 € |
| Informations sur l'annonceur | |
|---|---|
| Annonce de professionnel |
|
| Agence | L'Adresse Wattignies PARIS 12ème Voir toutes les annonces |
| Adresse | 56, rue de Wattignies |
| 75012 PARIS | |
| Téléphone Fixe | 0143414663 |
| Portable |
Description
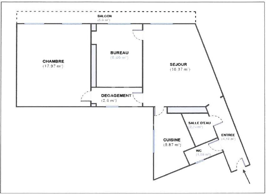
Quai des Carrières, au sein d'un bel immeuble de caractère des années 1930, L'adresse Wattignies vous présente en exclusivité cet élégant 3 pièces avec balcon filant, niché au 4ème étage (sans ascenseur) . Ce bien séduit immédiatement par son cachet authentique, mariant harmonieusement confort moderne et éléments d'époque. Espace de vie : Un séjour spacieux de plus de 16 m² ainsi qu'une chambre généreuse de près de18 m² ouvrant sur un large balcon filant, idéal pour profiter d'un extérieur avec une vue dégagée. Fonctionnalité : Une cuisine indépendante dînatoire entièrement équipée, une salle d'eau moderne avec double vasque et un bureau de 8,5 m² pouvant faire office de chambre d'enfant ou de télétravail Atouts charme : Parquet d'origine en chêne massif, moulures délicates au plafond et cheminées décoratives. Pour toute information ou pour organiser une visite, contactez Alain au 07 68 50 53 54. Découvrez ce bien dès maintenant : Une visite virtuelle est disponible Visites sur place : Créneaux dédiés les mardis et samedis après-midi. (4.24 % honoraires TTC à la charge de l'acquéreur.) Copropriété de 51 lots - dont 22 lots habitation. Charges annuelles : 1161 euros.