En vente Bien 37 m2

Ville CALUIRE ET CUIRE
Code postal 69300
Type de bien Bien
Surface 37 m2
Nombre de pièces
Prix 120 000,00 €
Informations sur l'annonceur
Annonce de professionnel
Agence LYON MÉTROPOLE HABITAT Lyon
Voir toutes les annonces
Adresse 194 RUE DUGUESCLIN
69003 LYON
Téléphone Fixe 0472690169
Portable

Description

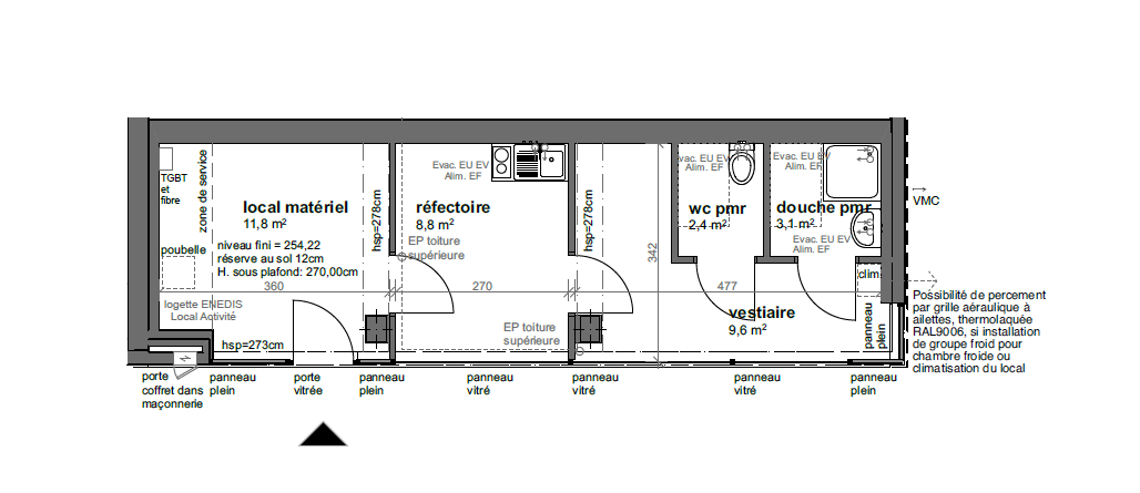
Lyon Métropole Habitat vous propose à la vente un local d'activité de 35,70 m², situé au RDC d'un immeuble au coeur du quartier Montessuy à Caluire-et-Cuire. Idéalement situé au 75 rue Pasteur, ce local bénéficie d'une visibilité directe sur rue, offrant ainsi une excellente accessibilité. Il profite d'un emplacement recherché, à proximité immédiate des commerces, services et commodités du secteur. Situé en face de l'arrêt de bus Montessuy Calmette, desservi par la ligne C1. Le bien, en très bon état se compose d'une pièce principale modulable, un espace réfectoire, ainsi qu'un vestiaire. Le local dispose également de sanitaires indépendants (WC et douche). Cet espace convient parfaitement pour une activité tertiaire : bureaux, professions libérales, espaces créatifs ou collaboratifs, cabinets de conseil, etc. Toutes activités de bouches sont proscrites (restauration, traiteur, etc.) La vente est soumise à validation d'un dossier de candidature étayé. Prix de vente : 120 000 euros TTC.

Les photos du bien

Les diagnostics