En vente Terrain 1392 m2
| Ville | SPERACEDES |
| Code postal | 06530 |
| Type de bien | Terrain |
| Surface | 1392 m2 |
| Nombre de pièces | |
| Prix | 250 000,00 € |
| Informations sur l'annonceur | |
|---|---|
| Annonce de professionnel |
|
| Agence | LEMAITRE DE L'IMMOBILIER - LEMAITRE DE L'IMMOBILIER Voir toutes les annonces |
| Adresse | ROUTE DE DRAGUIGNAN CENTRE COMMERCIAL |
| 06530 LE TIGNET | |
| Téléphone Fixe | 0493771314 |
| Portable |
Description
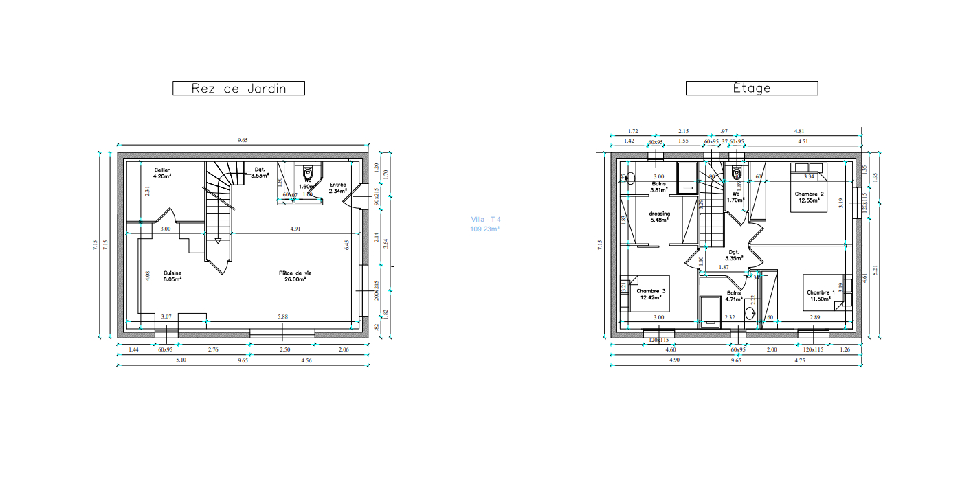
* Exclusivité Spéracèdes * Terrain à bâtir de 1392 m² au calme absolu au fond d'une impasse, avec un permis de construire accordé pour une maison de 109 m² en R+1 et sa piscine. Comprenant : au rez de chaussée : une entrée, un cellier, une cuisine, séjour salon. A l'étage : 3 chambres, un wc, un dressing, une salle de bains, dont une suite parentale avec salle de bains. Une piscine de 6.52 x 3.75 Assainissement : A raccorder au tout à l'égout. Chemin d'accès qui desservira deux villas indépendantes. Exigence : RT 2020. (5.49 % honoraires TTC à la charge de l'acquéreur.)