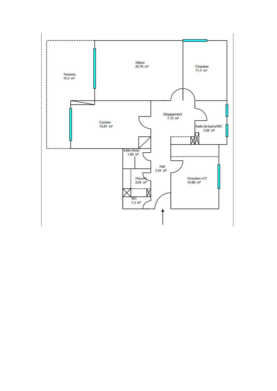
En vente Appartement 3 pièces 80 m2
| Ville | Vence |
| Code postal | 06140 |
| Type de bien | Appartement |
| Surface | 80 m2 |
| Nombre de pièces | 3 pièces |
| Prix | 410 000,00 € |
| Informations sur l'annonceur | |
|---|---|
| Annonce de professionnel |
|
| Agence | Barnabé Voir toutes les annonces |
| Adresse | |
| 75006 Paris | |
| Téléphone Fixe | 0123456789 |
Description
Magnifique T3 de 80 m² en RDJ, très bien distribué avec un grand jardin de plus de 250 m² entourant l'appartement sans vis à vis. Le bien dispose d'une grande terrasse orientée Sud vers le jardin offrant une très belle luminosité. Les pièces sont spacieuses apportant un grand confort. Une grande salle de bain avec baignoire et une salle d'eau indépendante avec douche apporte l'indépendance aux deux grandes chambres. Le bien dispose d'une place de parking sous-sol et d'une cave en accès immédiat à l'appartement.
Un rafraîchissement au goût actuel est envisageable pour sublimer les atouts de cet appartement.
Le bien se trouve dans une résidence sécurisée composée de 4 bâtiments d'habitation et d'emplacements de stationnement, situé à 850 mètre du centre historique (village) de VENCE.
Diffuze : votre prestataire de diffusion d'annonces immobilières. (gedeon_52960_32935313)
Les photos du bien
Les diagnostics
Les informations complémentaires
Superbe 3 pièce avec grand Jardin