En location Bien 27 m2

Ville Gignac-la-Nerthe
Code postal 13180
Type de bien Bien
Surface 27 m2
Nombre de pièces
Prix 920,00 €
Informations sur l'annonceur
Annonce de professionnel
Agence PEPS'IMMO
Voir toutes les annonces
Adresse
13500 Martigues
Portable 0662070399

Description

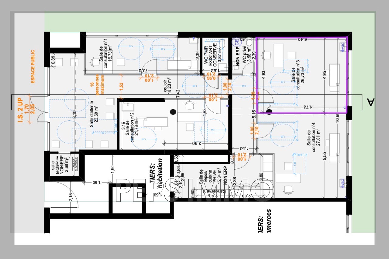
À LOUER ? Local professionnel 27 m² ? Gignac-la-Nerthe

Installez votre activité au coeur d'un pôle de santé moderne, entouré d'espaces verts et disposant de stationnements facilitant l'accueil de votre patientèle.
L'agence PEPS'IMMO met à votre disposition un espace fonctionnel et confortable, comprenant notamment une salle d'attente, une salle de repos et un accès conforme aux normes PMR.
Réservé exclusivement aux professions médicales et paramédicales.
Disponibilité : début avril.
Le local proposé est identifié par un encadrement violet sur le plan annexé.

Les atouts du bien :
Superficie : 27 m²
Local neuf situé en copropriété
Environnement : pôle santé, parking, espaces verts, accès PMR
Espace lumineux et fonctionnel
Idéal pour profession médicale ou paramédicale

Conditions locatives :
Loyer : 920 ¤ charges comprises
Dépôt de garantie : 1840 ¤
Honoraires d'agence à la charge du preneur : 1656 ¤ TTC
Disponibilité : début avril

Une belle opportunité pour installer votre activité dans un cadre professionnel agréable.
N'hésitez pas à nous contacter pour une éventuelle visite.

Les photos du bien

Les diagnostics